Plan Number 10555 | Order Code: 00WEB | COOLhouseplans.com | 800-482-0464
Family Home Plans - Better Living By Good Design

Plan Number 10555 | Order Code: 00WEB

COOLhouseplans.com
800-482-0464

Plan Number: 10555

  • 2176 Total Living Area
  • 1671 Main Level
  • 505 Upper Level
  • 3 Bedrooms
  • 2 Full Bath(s)
  • 1 Half Bath(s)
  • 2 Car Garage
  • 77' Wide x 41'6 Deep
Available Foundation Types:
  • Basement
  • Crawlspace

Order Code: 00WEB

  • PDF Study Set: $900.00
  • PDF File: $1,100.00
  • 1 Set: $900.00
  • 5 Sets: $1,000.00
  • 5 Sets plus PDF File: $1,200.00
  • Materials List: $150.00
  • Right Reading (True) Reverse: $100.00
    All sets will be Readable Reverse copies. Turn around time is usually 3 to 5 business days.
  • Additional Sets: $50.00

Plan Number 10555 | Order Code: 00WEB | Elevation

Reverse Plan


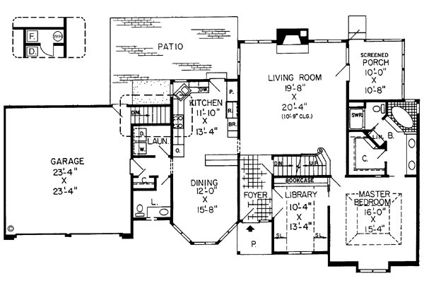
Plan Number 10555 | Order Code: 00WEB | First Floor Plan

Reverse Plan


Plan Number 10555 | Order Code: 00WEB | Second Floor Plan

Reverse Plan


Plan Number 10555 | Order Code: 00WEB | Rear Elevation

Plan Number 10555 Specifications:

  • Total Living Area: 2176
  • Main Living Area: 1671
  • Upper Living Area: 505
  • Unfinished Basement Area: 1661
  • Garage Area: 604
  • Garage Type: Attached
  • Garage Bays: 2
  • House Width: 77'
  • House Depth: 41'6
  • Number of Stories: 2
  • Bedrooms: 3
  • Full Baths: 2
  • Half Baths: 1
  • Max Ridge Height: 28' from Front Door Floor Level
  • Primary Roof Pitch: 8:12
  • Roof Load: 30 psf
  • Roof Framing: Stick
  • Porch: 135 sq ft
  • Formal Dining Room: Yes
  • FirePlace: Yes
  • 1st Floor Master: Yes
  • Main Ceiling Height: 8'
  • Upper Ceiling Height: 8'

Available Foundation Types:

  • Basement
  • Crawlspace

Plan Number 10555 Plan Pricing:

  • PDF Study Set: $900.00
    Get your plans fast! A PDF Study Set is a complete set of plans stamped NOT FOR CONSTRUCTION. Not considered a license-to-build. Great for bidding purposes. Customer can upgrade within 90 days.
  • PDF File: $1,100.00
  • 1 Set: $900.00
  • 5 Sets: $1,000.00
  • 5 Sets plus PDF File: $1,200.00
  • Materials List: $150.00
  • Right Reading (True) Reverse: $100.00
    All sets will be Readable Reverse copies. Turn around time is usually 3 to 5 business days.
  • Additional Sets: $50.00

Plans are not to be sold in New Jersey or Maryland.

Plan Number 10555 | Order Code: 00WEB | Specifications and Pricing
COOLhouseplans.com
800-482-0464

Plan Modifications

Plan modification is a way of turning a stock plan into your unique custom plan. It's still just a small fraction of the price you would pay to create a home plan from scratch. You will receive a FREE, no obligation, modification estimate to get exactly the home plan you've been dreaming of. Simply contact the modification department 1 of 3 ways:

Call 866-465-5866 and talk to a live person that can give you and FREE modification estimate over the phone!

Email Us - Please Include your telephone number, plan number, foundation type, state you are building in and a specific list of changes.

Fax: 651-602-5050 - Make sure to include a cover sheet with your contact info. Make attention to the COOLhouseplans.com Modification Department.

Plan Number 10555 | Order Code: 00WEB | Specifications and Pricing
COOLhouseplans.com
800-482-0464

COPYRIGHT NOTICE. It is illegal to build this plan without a legally obtained set of plans. It is illegal to copy or redraw these plans. Violation of U.S. copyright laws are punishable with fines of up to $200,000. After the purchase of plans, changes may be made by a qualified professional.