


** 1 Set order does not include a License-To-Build. For bidding purposes only. Customer can upgrade order within 90 days.
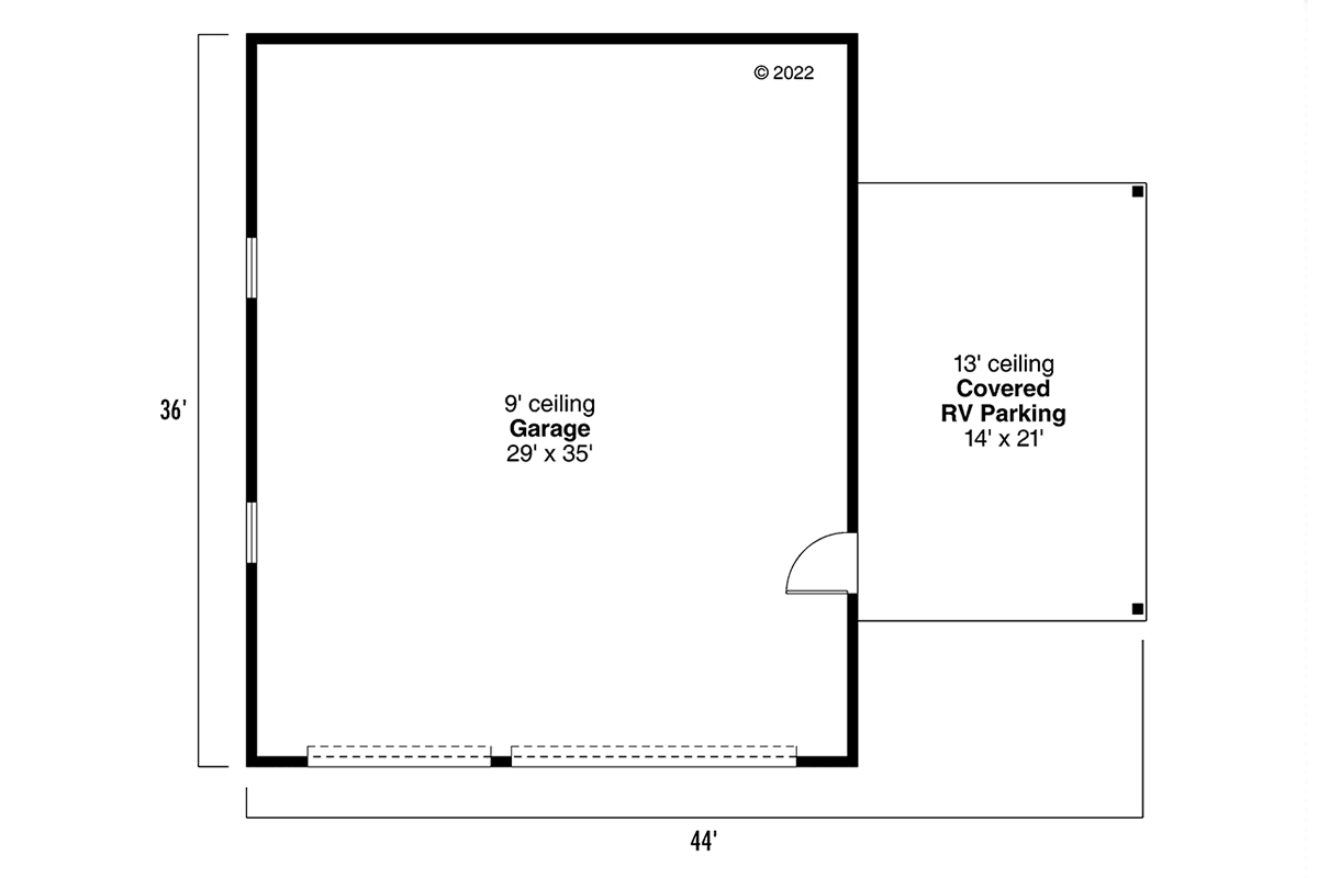
RV storage: 294 sq. ft.
COPYRIGHT NOTICE. It is illegal to build this plan without a legally obtained set of plans. It is illegal to copy or redraw these plans. Violation of U.S. copyright laws are punishable with fines of up to $200,000. After the purchase of plans, changes may be made by a qualified professional.