Plan Number 50096 | Order Code: 00WEB | COOLhouseplans.com | 800-482-0464
Family Home Plans - Better Living By Good Design

Plan Number 50096 | Order Code: 00WEB

COOLhouseplans.com
800-482-0464

Plan Number: 50096

  • 2500 Total Living Area
  • 1787 Main Level
  • 713 Upper Level
  • 4 Bedrooms
  • 2 Full Bath(s)
  • 1 Half Bath(s)
  • 2 Car Garage
  • 57'6 Wide x 50'6 Deep
Available Foundation Types:
  • Basement
  • Crawlspace - * $100.00

* May require additional drawing time.

Order Code: 00WEB

  • PDF File: $1,100.00
  • 5 Sets plus PDF File: $1,150.00
  • Additional Sets: $50.00

Plan Number 50096 | Order Code: 00WEB | Elevation

Reverse Plan


Plan Number 50096 | Order Code: 00WEB | First Floor Plan

Reverse Plan


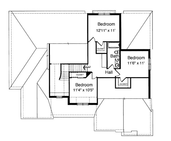
Plan Number 50096 | Order Code: 00WEB | Second Floor Plan

Reverse Plan


Plan Number 50096 | Order Code: 00WEB | Rear Elevation

Plan Number 50096 Specifications:

  • Total Living Area: 2500
  • Main Living Area: 1787
  • Upper Living Area: 713
  • Unfinished Basement Area: 1787
  • Garage Area: 459
  • Garage Type: Attached
  • Garage Bays: 2
  • House Width: 57'6
  • House Depth: 50'6
  • Number of Stories: 2
  • Bedrooms: 4
  • Full Baths: 2
  • Half Baths: 1
  • Max Ridge Height: 25'3 from Front Door Floor Level
  • Primary Roof Pitch: 8:12
  • Roof Load: 47 psf
  • Roof Framing: Truss
  • Porch: 206 sq ft
  • FirePlace: Yes
  • 1st Floor Master: Yes
  • Main Ceiling Height: 9'1
  • Upper Ceiling Height: 8'1
  • Vaulted Ceiling: Yes
  • Tray Ceiling: Yes

Available Foundation Types:

  • Basement
  • Crawlspace - $100.00

Plan Number 50096 Plan Pricing:

  • PDF File: $1,100.00
  • 5 Sets plus PDF File: $1,150.00
  • PDF File Unlimited Build: $1,700.00
  • Additional Sets: $50.00

Designer sends a PDF via email to each customer that orders a 5 or 8 set package.

Plan Number 50096 | Order Code: 00WEB | Specifications and Pricing
COOLhouseplans.com
800-482-0464

Plan Modifications

Receive a FREE modification estimate in one of 3 ways. Our modification team is ready to help you adjust any plan to fit your needs. The ReDesign process is simple and estimates are free!

1. Complete this On-Line Request Form

2. Print, complete and fax this PDF Form to us at 1-800-675-4916.

3. Want to talk to an expert? Call us at 913-938-8097 (Canadian customers, please call 800-361-7526) to discuss modifications.

Note: - a sketch of the changes or the website floor plan marked up to reflect changes is a great way to convey the modifications in addition to a written list.

We Work Fast!

When you submit your ReDesign request, a designer will contact you within 24 business hours with a quote.
You can have your plan redesigned in as little as 14 - 21 days!

We look forward to hearing from you!

Start today planning for tomorrow!

Plan Number 50096 | Order Code: 00WEB | Specifications and Pricing
COOLhouseplans.com
800-482-0464

COPYRIGHT NOTICE. It is illegal to build this plan without a legally obtained set of plans. It is illegal to copy or redraw these plans. Violation of U.S. copyright laws are punishable with fines of up to $200,000. After the purchase of plans, changes may be made by a qualified professional.