Plan Number 56713 | Order Code: 00WEB | COOLhouseplans.com | 800-482-0464
Family Home Plans - Better Living By Good Design

Plan Number 56713 | Order Code: 00WEB

COOLhouseplans.com
800-482-0464

Plan Number: 56713

  • 2428 Total Living Area
  • 2428 Main Level
  • 3 Bedrooms
  • 2 Full Bath(s)
  • 1 Half Bath(s)
  • 2 Car Garage
  • 76'6 Wide x 57'0 Deep
Available Foundation Types:
  • Basement - * $395.00
  • Crawlspace - * $175.00
  • Slab
  • Walkout Basement - * $395.00

* May require additional drawing time.

Order Code: 00WEB

  • PDF File: $1,445.00
  • 5 Sets plus PDF File: $1,695.00
  • CAD File: $2,545.00
    Unlimited Build License issued on CAD File orders.
  • Materials List: $300.00
    Important Notice: Material list only includes materials for the base slab and crawlspace versions. Basement and 2x6 wall options NOT included.
  • Right Reading (True) Reverse: $250.00
    All sets will be Readable Reverse copies. Turn around time is usually 3 to 5 business days.
  • Additional Sets: $100.00

Plan Number 56713 | Order Code: 00WEB | Elevation

Reverse Plan


Plan Number 56713 | Order Code: 00WEB | First Floor Plan

Reverse Plan


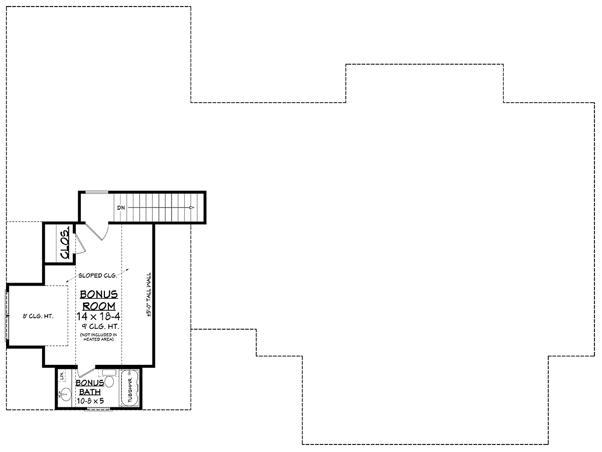
Plan Number 56713 | Order Code: 00WEB | Second Floor Plan

Reverse Plan


Plan Number 56713 | Order Code: 00WEB | Rear Elevation

Plan Number 56713 Specifications:

  • Total Living Area: 2428
  • Main Living Area: 2428
  • Bonus Area: 381
  • Garage Area: 575
  • Garage Type: Attached
  • Garage Bays: 2
  • House Width: 76'6
  • House Depth: 57'0
  • Number of Stories: 1.5
  • Bedrooms: 3
  • Full Baths: 2
  • Half Baths: 1
  • Max Ridge Height: 28'0 from Front Door Floor Level
  • Primary Roof Pitch: 9:12
  • Roof Load: 30 psf
  • Roof Framing: Stick
  • Porch: 430 sq ft
  • Formal Dining Room: Yes
  • FirePlace: Yes
  • 1st Floor Master: Yes
  • Main Ceiling Height: 9'
  • Upper Ceiling Height: 9'

Available Foundation Types:

  • Basement - $395.00 Total Living Area may increase with Basement Foundation option - please call to confirm before ordering.
  • Crawlspace - $175.00
  • Slab
  • Walkout Basement - $395.00 Total Living Area may increase with Basement Foundation option - please call to confirm before ordering.

Plan Number 56713 Plan Pricing:

  • PDF File: $1,445.00
  • 5 Sets plus PDF File: $1,695.00
  • PDF File Unlimited Build: $2,145.00
  • CAD File: $2,545.00
    Unlimited Build License issued on CAD File orders.
  • Materials List: $300.00
    Important Notice: Material list only includes materials for the base slab and crawlspace versions. Basement and 2x6 wall options NOT included.
  • Right Reading (True) Reverse: $250.00
    All sets will be Readable Reverse copies. Turn around time is usually 3 to 5 business days.
  • Additional Sets: $100.00


Unlimited License To Build included with CAD file sale.
CAD file sale also includes PDF file. Materials list will NOT reflect any options that have an additional fee because those are modifications. If you buy a materials list, it will only reflect the standard original plan. All of our CAD files are delivered in .DWG format and do not contain any type of 3D capability. Files are delivered in 2004 format so that older software versions will be able to open the files.

Plan Number 56713 | Order Code: 00WEB | Specifications and Pricing
COOLhouseplans.com
800-482-0464

Plan Modifications

Receive a FREE modification estimate.

Plan modification is a way of turning a stock plan into your unique custom plan. It's still just a small fraction of the price you would pay to create a home plan from scratch. We believe that modification estimates should be FREE!

We provide a modification service so that you can customize your new home plan to fit your budget and lifestyle.

Email Designer This is the best and quickest way to get a modification quote!

Please include your preferred Foundation Type and a Specific List of Changes. You can also attach a Sketch of Changes.

It's as simple as that!

Plan Number 56713 | Order Code: 00WEB | Specifications and Pricing
COOLhouseplans.com
800-482-0464

COPYRIGHT NOTICE. It is illegal to build this plan without a legally obtained set of plans. It is illegal to copy or redraw these plans. Violation of U.S. copyright laws are punishable with fines of up to $200,000. After the purchase of plans, changes may be made by a qualified professional.