Plan Number 57549 | Order Code: 00WEB | COOLhouseplans.com | 800-482-0464
Family Home Plans - Better Living By Good Design

Plan Number 57549 | Order Code: 00WEB

COOLhouseplans.com
800-482-0464

Plan Number: 57549

  • 1413 Total Living Area
  • 1067 Main Level
  • 346 Upper Level
  • 2 Bedrooms
  • 2 Full Bath(s)
  • 2 Car Garage
  • 34' Wide x 70' Deep
Available Foundation Types:
  • Walkout Basement

Order Code: 00WEB

  • PDF File: $885.00
  • Materials List: $80.00

Plan Number 57549 | Order Code: 00WEB | Elevation

Reverse Plan


Plan Number 57549 | Order Code: 00WEB | Lower Floor Plan

Reverse Plan


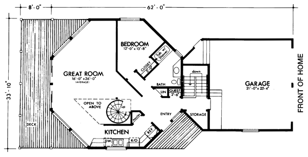
Plan Number 57549 | Order Code: 00WEB | First Floor Plan

Reverse Plan


Plan Number 57549 | Order Code: 00WEB | Second Floor Plan

Reverse Plan


Plan Number 57549 | Order Code: 00WEB | Rear Elevation

Plan Number 57549 Specifications:

  • Total Living Area: 1413
  • Main Living Area: 1067
  • Upper Living Area: 346
  • Unfinished Basement Area: 1045
  • Garage Area: 512
  • Garage Type: Attached
  • Garage Bays: 2
  • House Width: 34'
  • House Depth: 70'
  • Number of Stories: 2
  • Bedrooms: 2
  • Full Baths: 2
  • Max Ridge Height: 23' from Front Door Floor Level
  • Primary Roof Pitch: 4:12
  • Roof Load: 40 psf
  • Roof Framing: Truss
  • Porch: 74 sq ft
  • Deck: 304 sq ft
  • Main Ceiling Height: 8'

Available Foundation Types:

  • Walkout Basement

Plan Number 57549 Plan Pricing:

  • PDF File: $885.00
  • Materials List: $80.00
Plan Number 57549 | Order Code: 00WEB | Specifications and Pricing
COOLhouseplans.com
800-482-0464

Plan Modifications

Plan modification is a way of turning a stock plan into your unique custom plan. It's still just a small fraction of the price you would pay to create a home plan from scratch. You will receive a FREE, no obligation, modification estimate to get exactly the home plan you've been dreaming of. Simply contact the modification department 1 of 3 ways:

Call 866-465-5866 and talk to a live person that can give you and FREE modification estimate over the phone!

Email Us - Please Include your telephone number, plan number, foundation type, state you are building in and a specific list of changes.

Fax: 651-602-5050 - Make sure to include a cover sheet with your contact info. Make attention to the COOLhouseplans.com Modification Department.

Plan Number 57549 | Order Code: 00WEB | Specifications and Pricing
COOLhouseplans.com
800-482-0464

COPYRIGHT NOTICE. It is illegal to build this plan without a legally obtained set of plans. It is illegal to copy or redraw these plans. Violation of U.S. copyright laws are punishable with fines of up to $200,000. After the purchase of plans, changes may be made by a qualified professional.