Plan Number 59307 | Order Code: 00WEB | COOLhouseplans.com | 800-482-0464
Family Home Plans - Better Living By Good Design

Plan Number 59307 | Order Code: 00WEB

COOLhouseplans.com
800-482-0464

Plan Number: 59307

  • 681 Total Living Area
  • 681 Main Level
  • 1 Bedrooms
  • 1 3/4 Bath(s)
  • 36' Wide x 30' Deep
Available Foundation Types:
  • Crawlspace - * $300.00
  • Slab

Order Code: 00WEB

  • PDF File: $625.00
  • CAD File: $1,050.00
  • Right Reading (True) Reverse: $100.00
    All sets will be Readable Reverse copies. Turn around time is usually 3 to 5 business days.

Plan Number 59307 | Order Code: 00WEB | Elevation

Reverse Plan


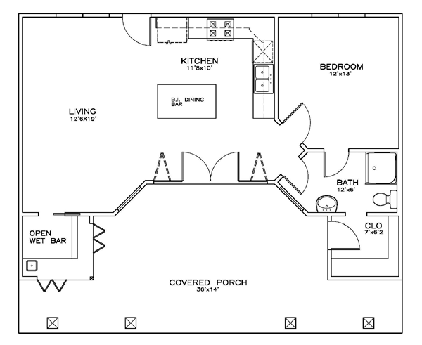
Plan Number 59307 | Order Code: 00WEB | First Floor Plan

Reverse Plan

Plan Number 59307 Specifications:

  • Total Living Area: 681
  • Main Living Area: 681
  • Garage Type: None
  • House Width: 36'
  • House Depth: 30'
  • Number of Stories: 1
  • Bedrooms: 1
  • 3/4 Baths: 1
  • Max Ridge Height: 19' from Front Door Floor Level
  • Primary Roof Pitch: 8:12
  • Roof Load: 40 psf
  • Roof Framing: Truss and/or Stick
  • Porch: 399 sq ft
  • 1st Floor Master: Yes
  • Main Ceiling Height: 9'

Available Foundation Types:

  • Crawlspace - $300.00
  • Slab

Plan Number 59307 Plan Pricing:

  • PDF File: $625.00
  • 5 Sets plus PDF File: $0.00
  • CAD File: $1,050.00
  • Right Reading (True) Reverse: $100.00
    All sets will be Readable Reverse copies. Turn around time is usually 3 to 5 business days.
Plan Number 59307 | Order Code: 00WEB | Specifications and Pricing
COOLhouseplans.com
800-482-0464

Plan Modifications

Receive a FREE modification estimate in one of 3 ways. Our modification team is ready to help you adjust any plan to fit your needs. The ReDesign process is simple and estimates are free!

1. Complete this On-Line Request Form

2. Print, complete and fax this PDF Form to us at 1-800-675-4916.

3. Want to talk to an expert? Call us at 913-938-8097 (Canadian customers, please call 800-361-7526) to discuss modifications.

Note: - a sketch of the changes or the website floor plan marked up to reflect changes is a great way to convey the modifications in addition to a written list.

We Work Fast!

When you submit your ReDesign request, a designer will contact you within 24 business hours with a quote.
You can have your plan redesigned in as little as 14 - 21 days!

We look forward to hearing from you!

Start today planning for tomorrow!

Plan Number 59307 | Order Code: 00WEB | Specifications and Pricing
COOLhouseplans.com
800-482-0464

COPYRIGHT NOTICE. It is illegal to build this plan without a legally obtained set of plans. It is illegal to copy or redraw these plans. Violation of U.S. copyright laws are punishable with fines of up to $200,000. After the purchase of plans, changes may be made by a qualified professional.