



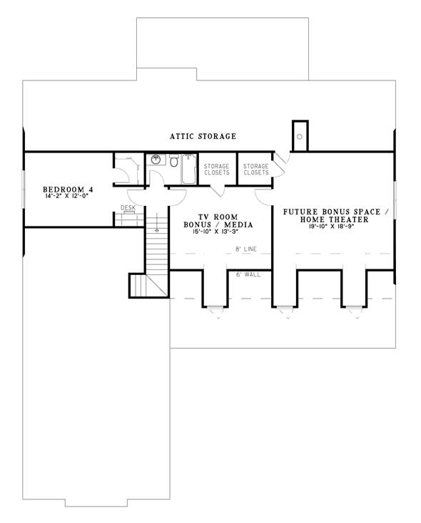
Front Covered Porch with 10 inch columns Open Foyer with 8 inch box columns to Dining Room Great Room with media center, fireplace, built-ins, access to Rear Grilling Porch and open to Kitchen area Kitchen with snack bar and pantry Breakfast Room with Computer Desk Master Suite with private bath Master Bath with glass shower, whirlpool tub, split vanities and walk-in closet Laundry with Kid's Nook nearby Upper Floor Bedroom 4 with walkin closet and desk TV Room Future Bonus rooms available
Orders placed with overnight/2-day shipping may be delayed by two business days due to a review process.
COPYRIGHT NOTICE. It is illegal to build this plan without a legally obtained set of plans. It is illegal to copy or redraw these plans. Violation of U.S. copyright laws are punishable with fines of up to $200,000. After the purchase of plans, changes may be made by a qualified professional.