Plan Number 90879 | Order Code: 00WEB | COOLhouseplans.com | 800-482-0464
Family Home Plans - Better Living By Good Design

Plan Number 90879 | Order Code: 00WEB

COOLhouseplans.com
800-482-0464

Plan Number: 90879

  • 2115 Total Living Area
  • 1142 Main Level
  • 973 Upper Level
  • 3 Bedrooms
  • 2 Full Bath(s)
  • 1 Half Bath(s)
  • 3 Car Garage
  • 60' Wide x 50' Deep
Available Foundation Types:
  • Basement
  • Crawlspace - * $295.00
  • Slab - * $295.00
  • Walkout Basement - * $495.00

* May require additional drawing time.

Order Code: 00WEB

  • PDF File: $1,345.00
  • 5 Sets plus PDF File: $1,595.00
  • CAD File: $1,848.00
  • Materials List: $125.00
  • Right Reading (True) Reverse: $200.00
    All sets will be Readable Reverse copies. Turn around time is usually 3 to 5 business days.
  • Additional Sets: $55.00

Plan Number 90879 | Order Code: 00WEB | Elevation

Reverse Plan


Plan Number 90879 | Order Code: 00WEB | First Floor Plan

Reverse Plan


Plan Number 90879 | Order Code: 00WEB | Second Floor Plan

Reverse Plan


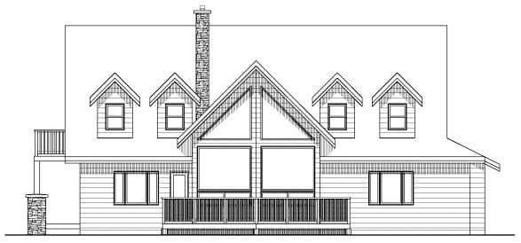
Plan Number 90879 | Order Code: 00WEB | Rear Elevation

Plan Number 90879 Specifications:

  • Total Living Area: 2115
  • Main Living Area: 1142
  • Upper Living Area: 973
  • Unfinished Basement Area: 1142
  • Garage Area: 614
  • Garage Type: Attached
  • Garage Bays: 3
  • House Width: 60'
  • House Depth: 50'
  • Number of Stories: 1
  • Bedrooms: 3
  • Full Baths: 2
  • Half Baths: 1
  • Max Ridge Height: 22'8 from Front Door Floor Level
  • Primary Roof Pitch: 8:12
  • Roof Load: 65 psf
  • Roof Framing: Stick
  • Formal Dining Room: Yes
  • FirePlace: Yes
  • Main Ceiling Height: 8'
  • Upper Ceiling Height: 8'

Available Foundation Types:

  • Basement
  • Crawlspace - $295.00
  • Slab - $295.00
  • Walkout Basement - $495.00 Total Living Area may increase with Basement Foundation option - please call to confirm before ordering.

Plan Number 90879 Plan Pricing:

  • PDF File: $1,345.00
  • 5 Sets plus PDF File: $1,595.00
  • CAD File: $1,848.00
  • Materials List: $125.00
  • Right Reading (True) Reverse: $200.00
    All sets will be Readable Reverse copies. Turn around time is usually 3 to 5 business days.
  • Additional Sets: $55.00

Two story high foyer, open staircase w/bridge
Vaulted clg in Great Rm, Master w/cozy sitting room

Plan Number 90879 | Order Code: 00WEB | Specifications and Pricing
COOLhouseplans.com
800-482-0464

Plan Modifications

Receive a FREE modification estimate in one of 3 ways. Our modification team is ready to help you adjust any plan to fit your needs. The ReDesign process is simple and estimates are free!

1. Complete this On-Line Request Form

2. Print, complete and fax this PDF Form to us at 1-800-675-4916.

3. Want to talk to an expert? Call us at 913-938-8097 (Canadian customers, please call 800-361-7526) to discuss modifications.

Note: - a sketch of the changes or the website floor plan marked up to reflect changes is a great way to convey the modifications in addition to a written list.

We Work Fast!

When you submit your ReDesign request, a designer will contact you within 24 business hours with a quote.
You can have your plan redesigned in as little as 14 - 21 days!

We look forward to hearing from you!

Start today planning for tomorrow!

Plan Number 90879 | Order Code: 00WEB | Specifications and Pricing
COOLhouseplans.com
800-482-0464

COPYRIGHT NOTICE. It is illegal to build this plan without a legally obtained set of plans. It is illegal to copy or redraw these plans. Violation of U.S. copyright laws are punishable with fines of up to $200,000. After the purchase of plans, changes may be made by a qualified professional.