Plan Number 93456 | Order Code: 00WEB | COOLhouseplans.com | 800-482-0464
Family Home Plans - Better Living By Good Design

Plan Number 93456 | Order Code: 00WEB

COOLhouseplans.com
800-482-0464

Plan Number: 93456

  • 1406 Total Living Area
  • 1406 Main Level
  • 3 Bedrooms
  • 2 Full Bath(s)
  • 2 Car Garage
  • 76'6 Wide x 57'1 Deep
Available Foundation Types:
  • Crawlspace
  • Slab

Order Code: 00WEB

  • PDF File: $600.00
  • Materials List: $45.00

Plan Number 93456 | Order Code: 00WEB | Elevation

Reverse Plan


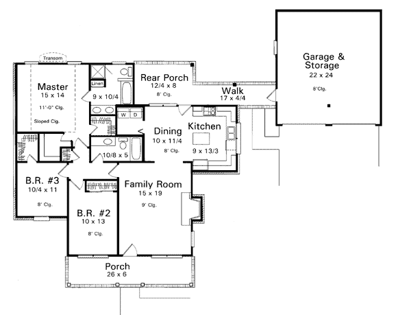
Plan Number 93456 | Order Code: 00WEB | First Floor Plan

Reverse Plan

Plan Number 93456 Specifications:

  • Total Living Area: 1406
  • Main Living Area: 1406
  • Garage Type: Detached
  • Garage Bays: 2
  • House Width: 76'6
  • House Depth: 57'1
  • Number of Stories: 1
  • Bedrooms: 3
  • Full Baths: 2
  • Max Ridge Height: 21'4 from Front Door Floor Level
  • Primary Roof Pitch: 9:12
  • Roof Load: 40 psf
  • Roof Framing: Stick
  • Porch: 252 sq ft
  • FirePlace: Yes
  • 1st Floor Master: Yes
  • Main Ceiling Height: 8'

Available Foundation Types:

  • Crawlspace
  • Slab

Plan Number 93456 Plan Pricing:

  • PDF File: $600.00
  • Materials List: $45.00
Plan Number 93456 | Order Code: 00WEB | Specifications and Pricing
COOLhouseplans.com
800-482-0464

Plan Modifications

Receive a FREE modification estimate in one of 3 ways. Our modification team is ready to help you adjust any plan to fit your needs. The ReDesign process is simple and estimates are free!

1. Complete this On-Line Request Form

2. Print, complete and fax this PDF Form to us at 1-800-675-4916.

3. Want to talk to an expert? Call us at 913-938-8097 (Canadian customers, please call 800-361-7526) to discuss modifications.

Note: - a sketch of the changes or the website floor plan marked up to reflect changes is a great way to convey the modifications in addition to a written list.

We Work Fast!

When you submit your ReDesign request, a designer will contact you within 24 business hours with a quote.
You can have your plan redesigned in as little as 14 - 21 days!

We look forward to hearing from you!

Start today planning for tomorrow!

Plan Number 93456 | Order Code: 00WEB | Specifications and Pricing
COOLhouseplans.com
800-482-0464

COPYRIGHT NOTICE. It is illegal to build this plan without a legally obtained set of plans. It is illegal to copy or redraw these plans. Violation of U.S. copyright laws are punishable with fines of up to $200,000. After the purchase of plans, changes may be made by a qualified professional.