House Plan 86698 - with 1500 Sq Ft, 2 Bed, 1 Bath, 1 3/4 Bath | COOLhouseplans.com

15% Off Spring Sale! Use Promo Code SPRING at Checkout!

Call 800-482-0464
House Plan 86698 with 2 Beds, 2 Baths Elevation

Elevation

Photographs may show modified designs.
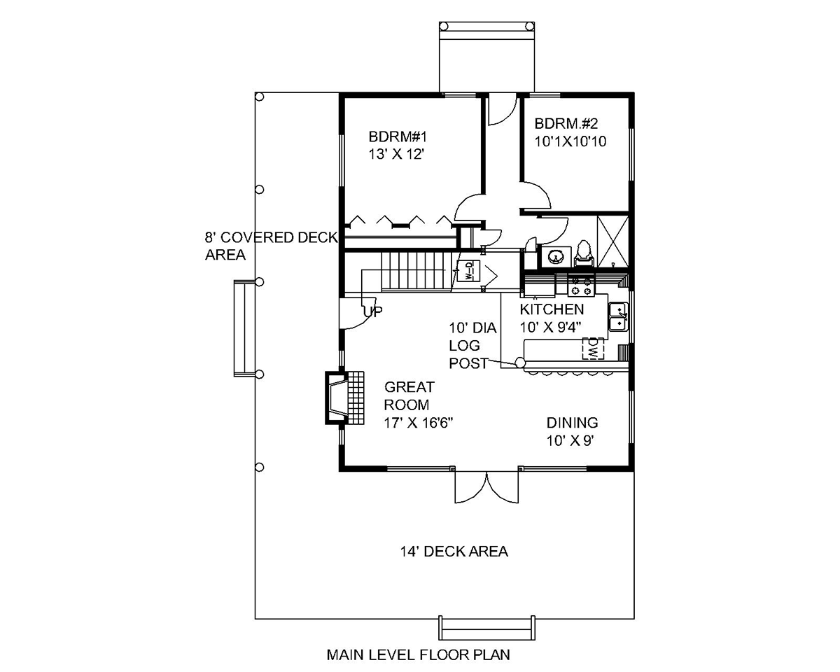
House Plan 86698 with 2 Beds, 2 Baths Level One

Level One

House Plan 86698 with 2 Beds, 2 Baths Level Two

Level Two

House Plan 86698 with 2 Beds, 2 Baths Rear Elevation

Rear Elevation

Photographs may show modified designs. Image quality may be compromised.

House Plans by this Designer

Plan Number 87205 - 2281 Square Feet
Plan Number 87204 - 2750 Square Feet
Plan Number 87203 - 3863 Square Feet
Plan Number 87202 - 3430 Square Feet
Plan Number 87201 - 1512 Square Feet
Plan Number 87200 - 3646 Square Feet
Plan Number 87199 - 2400 Square Feet
Plan Number 87198 - 2652 Square Feet
Plan Number 87197 - 2281 Square Feet
See More Plans by this Designer