House Plan 94119 - European Style with 1859 Sq Ft, 3 Bed, 2 Bath, | COOLhouseplans.com
Call 800-482-0464
European House Plan 94119 with 3 Beds, 3 Baths, 2 Car Garage Elevation

Elevation

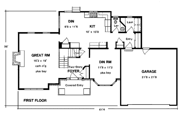
European House Plan 94119 with 3 Beds, 3 Baths, 2 Car Garage Level One

Level One

European House Plan 94119 with 3 Beds, 3 Baths, 2 Car Garage Level Two

Level Two

House Plans by this Designer

Plan Number 94180 - 2985 Square Feet
Plan Number 94179 - 3079 Square Feet
Plan Number 94178 - 2652 Square Feet
Plan Number 94177 - 2792 Square Feet
Plan Number 94176 - 3096 Square Feet
Plan Number 94175 - 2797 Square Feet
Plan Number 94174 - 3886 Square Feet
Plan Number 94173 - 2421 Square Feet
Plan Number 94172 - 5180 Square Feet
See More Plans by this Designer