House Plan 24736 - Traditional Style with 2044 Sq Ft, 3 Bed, 2 Ba | COOLhouseplans.com
Call 800-482-0464
Country, Farmhouse, Southern, Traditional House Plan 24736 with 3 Beds, 3 Baths, 2 Car Garage Elevation

Elevation

Photographs may show modified designs.
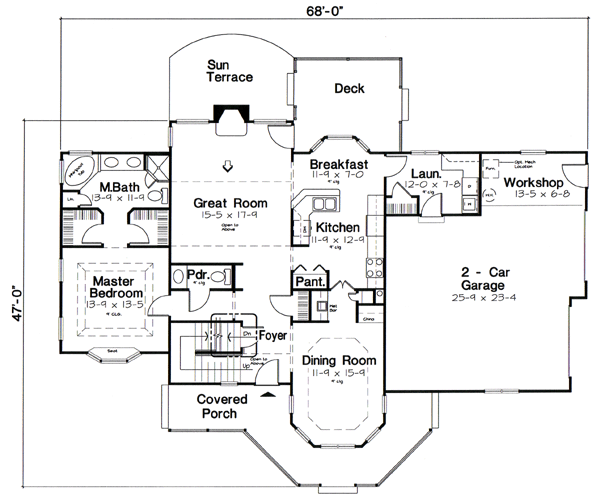
Country, Farmhouse, Southern, Traditional House Plan 24736 with 3 Beds, 3 Baths, 2 Car Garage Level One

Level One

Country, Farmhouse, Southern, Traditional House Plan 24736 with 3 Beds, 3 Baths, 2 Car Garage Alternate Level One

Alternate Level One

Country, Farmhouse, Southern, Traditional House Plan 24736 with 3 Beds, 3 Baths, 2 Car Garage Level Two

Level Two

Country, Farmhouse, Southern, Traditional House Plan 24736 with 3 Beds, 3 Baths, 2 Car Garage Rear Elevation

Rear Elevation

Photographs may show modified designs. Image quality may be compromised.

House Plans by this Designer

Plan Number 20000 - 1090 Square Feet
Plan Number 20004 - 972 Square Feet
Plan Number 20235 - 2233 Square Feet
Plan Number 24745 - 1837 Square Feet
Plan Number 25200 - 1631 Square Feet
Plan Number 25103 - 1831 Square Feet
Plan Number 24744 - 1837 Square Feet
Plan Number 25101 - 1737 Square Feet
Plan Number 6020 - 576 Square Feet
See More Plans by this Designer