House Plan 40641 - Ranch Style with 1453 Sq Ft, 3 Bed, 2 Bath | COOLhouseplans.com
Call 800-482-0464
Ranch House Plan 40641 with 3 Beds, 2 Baths, 2 Car Garage Elevation

Elevation

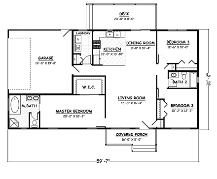
Ranch House Plan 40641 with 3 Beds, 2 Baths, 2 Car Garage Level One

Level One

Ranch House Plan 40641 with 3 Beds, 2 Baths, 2 Car Garage Alternate Level One

Alternate Level One

House Plans by this Designer

Plan Number 41977 - 2767 Square Feet
Plan Number 40689 - 1366 Square Feet
Plan Number 40688 - 1315 Square Feet
Plan Number 40687 - 1841 Square Feet
Plan Number 40686 - 1400 Square Feet
Plan Number 40685 - 1200 Square Feet
Plan Number 40684 - 1392 Square Feet
Plan Number 40674 - 1295 Square Feet
Plan Number 40669 - 3552 Square Feet
See More Plans by this Designer