House Plan 50636 - Traditional Style with 1696 Sq Ft, 3 Bed, 2 Ba | COOLhouseplans.com
Call 800-482-0464
Ranch, Traditional House Plan 50636 with 3 Beds, 2 Baths, 2 Car Garage Elevation

Elevation

Photographs may show modified designs.
Ranch, Traditional House Plan 50636 with 3 Beds, 2 Baths, 2 Car Garage Level One

Level One

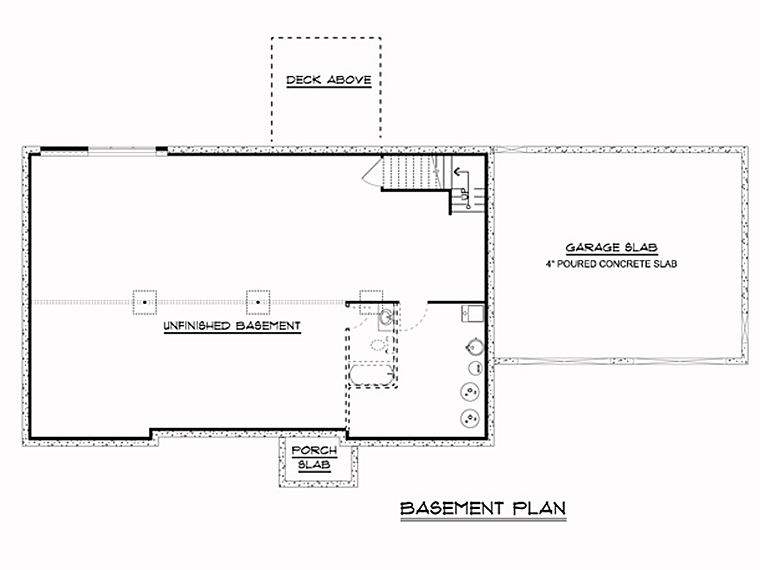
Ranch, Traditional House Plan 50636 with 3 Beds, 2 Baths, 2 Car Garage Lower Level

Lower Level

Ranch, Traditional House Plan 50636 with 3 Beds, 2 Baths, 2 Car Garage Rear Elevation

Rear Elevation

Photographs may show modified designs. Image quality may be compromised.

House Plans by this Designer

Plan Number 100761 - 2081 Square Feet
Plan Number 100760 - 3032 Square Feet
Plan Number 100759 - 2180 Square Feet
Plan Number 41813 - 3222 Square Feet
Plan Number 41812 - 5195 Square Feet
Plan Number 41811 - 1992 Square Feet
Plan Number 41810 - 3007 Square Feet
Plan Number 41814 - 2813 Square Feet
Plan Number 100756 - 2322 Square Feet
See More Plans by this Designer