House Plan 51471 - Traditional Style with 2163 Sq Ft, 3 Bed, 2 Ba | COOLhouseplans.com
Call 800-482-0464
Cottage, Craftsman, Traditional House Plan 51471 with 3 Beds, 2 Baths, 2 Car Garage Elevation

Elevation

Photographs may show modified designs.
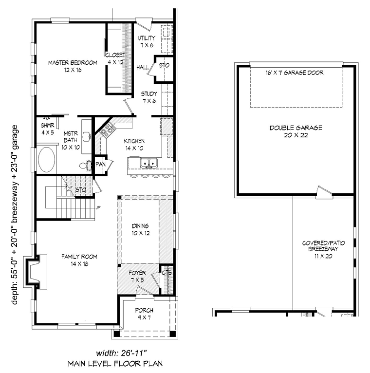
Cottage, Craftsman, Traditional House Plan 51471 with 3 Beds, 2 Baths, 2 Car Garage Level One

Level One

Cottage, Craftsman, Traditional House Plan 51471 with 3 Beds, 2 Baths, 2 Car Garage Level Two

Level Two

Cottage, Craftsman, Traditional House Plan 51471 with 3 Beds, 2 Baths, 2 Car Garage Rear Elevation

Rear Elevation

Photographs may show modified designs. Image quality may be compromised.

House Plans by this Designer

Plan Number 81522 - 3288 Square Feet
Plan Number 81527 - 2896 Square Feet
Plan Number 81525 - 2943 Square Feet
Plan Number 81523 - 2000 Square Feet
Plan Number 80926 - 1984 Square Feet
Plan Number 80933 - 1736 Square Feet
Plan Number 80932 - 1952 Square Feet
Plan Number 80930 - 1540 Square Feet
Plan Number 40822 - 2271 Square Feet
See More Plans by this Designer