House Plan 51650 - Southern Style with 1185 Sq Ft, 2 Bed, 1 Bath | COOLhouseplans.com
Call 800-482-0464
Cabin, Ranch, Southern House Plan 51650 with 2 Beds, 1 Baths Elevation

Elevation

Photographs may show modified designs.
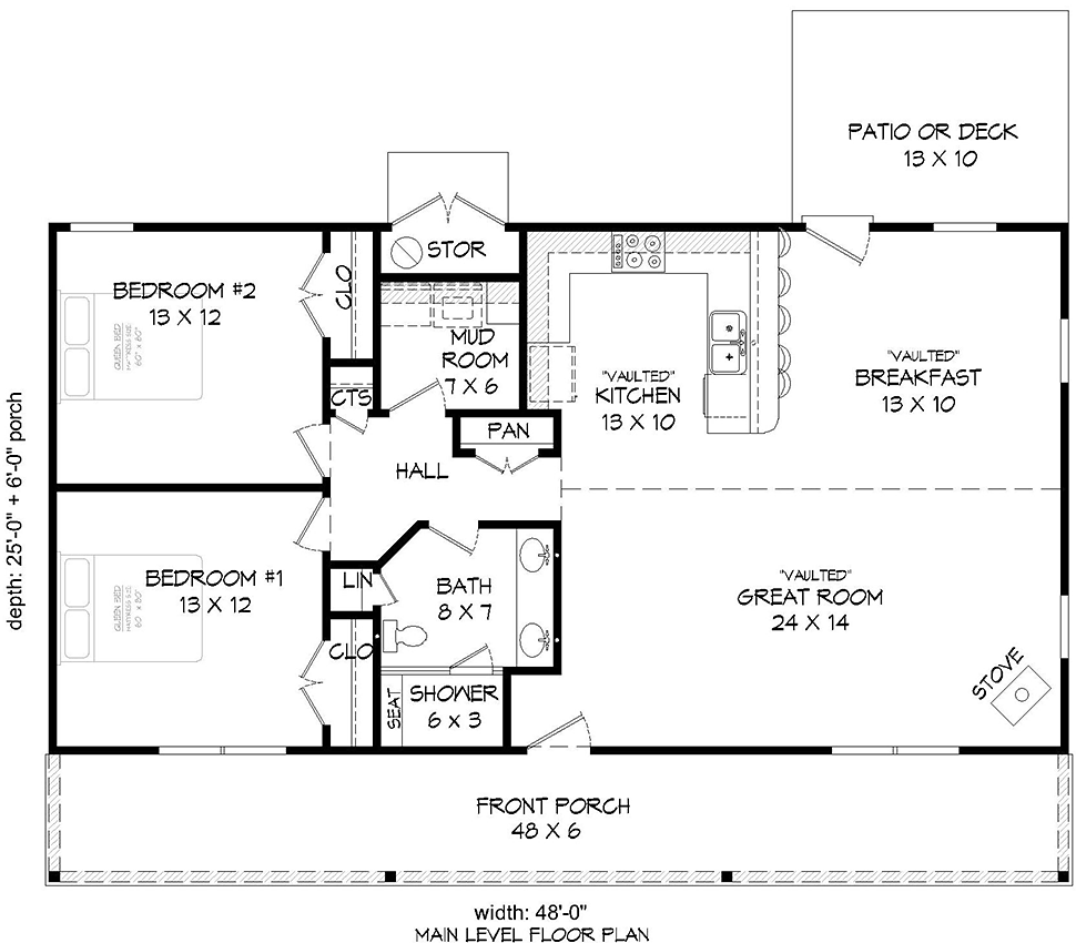
Cabin, Ranch, Southern House Plan 51650 with 2 Beds, 1 Baths Level One

Level One

Cabin, Ranch, Southern House Plan 51650 with 2 Beds, 1 Baths Rear Elevation

Rear Elevation

Photographs may show modified designs. Image quality may be compromised.

House Plans by this Designer

Plan Number 81522 - 3288 Square Feet
Plan Number 81527 - 2896 Square Feet
Plan Number 81525 - 2943 Square Feet
Plan Number 81523 - 2000 Square Feet
Plan Number 80926 - 1984 Square Feet
Plan Number 80933 - 1736 Square Feet
Plan Number 80932 - 1952 Square Feet
Plan Number 80930 - 1540 Square Feet
Plan Number 40822 - 2271 Square Feet
See More Plans by this Designer