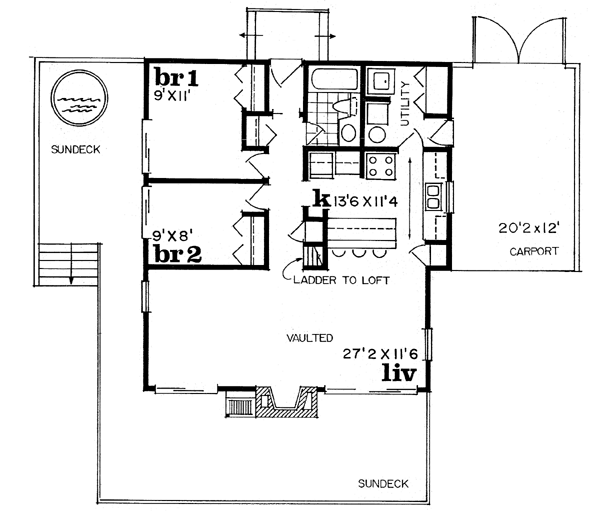
| Total Living Area: | 936 sq ft |
| Main Living Area: | 936 sq ft |
| Garage Type: | None |
| See our garage plan collection. If you order a house and garage plan at the same time, you will get 10% off your total order amount. | |
| Foundation Types: | Crawlspace |
| Exterior Walls: | 2x4 |
| House Width: | 30' |
| House Depth: | 32' |
| Number of Stories: | 1 |
| Bedrooms: | 2 |
| Full Baths: | 1 |
| Max Ridge Height: | 25' from Front Door Floor Level |
| Primary Roof Pitch: | 6:12 |
| Roof Load: | 42 psf |
| Roof Framing: | Stick |
| FirePlace: | Yes |
| Main Ceiling Height: | 8' |
Accurate. Fast. Trusted.
Construction Cost Estimates That Save You Time and Money.
With your 30-day online cost-to-build estimate you can start enjoying these benefits today.
Home-Cost.com’s INSTANT™ Cost-To-Build Report also provides you these added features and capabilities:
A: The square foot of the deck around the house total is 516 square foot.
A: Thank you for your email. The plan set will include a fully dimensioned and detailed floor plan. Thanks
A: Yes you can! Please click the "Modifications" tab above to get more information.
A: The national average for a house is running right at $125.00 per SF. You can get more detailed information by clicking the Cost-To-Build tab above. Sorry, but we cannot give cost estimates for garage, multifamily or project plans.
If you find the exact same plan featured on a competitor's web site at a lower price, advertised OR special SALE price, we will beat the competitor's price by 5% of the total, not just 5% of the difference! To take advantage of our guarantee, please call us at 800-482-0464 or email us the website and plan number when you are ready to order. Our guarantee extends up to 4 weeks after your purchase, so you know you can buy now with confidence.







