Title Sheet 3D line drawing of the residence, plan number.
Foundation Plan
• Plan showing dimensional layout of slab foundation of the home.
• Necessary notations pertaining to foundation.
• Keyed section marks of footings, piers, etc.
• If optional conventional plan, floor joist type and direction. (Post-Tension slabs, basements by others.)
Detail Sheet
• This sheet has standard section details for the particular type of foundation chosen.
• Typical cornice sections and symbol schedule.
• Typical wall sections.
• Note: Above details may be on other sheets.
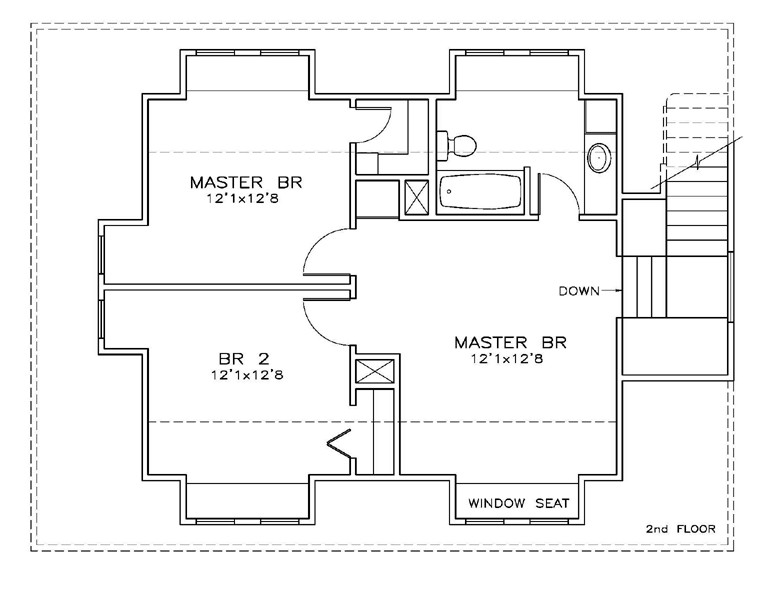
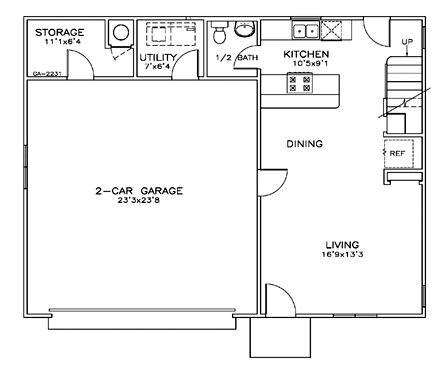
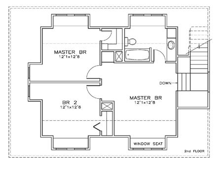
Floor Plans
• All wall placements with dimensions.
• Door & window sizes and descriptions.
• Room labels.
• Stairway dimensions, sections and layout. (May be shown on other sheets)
• Notes relating to vaults, electrical floor outlets, location of beams, headers.
• Suggested mechanical equipment locations.
Elevations
• Front, rear and all sides of the exterior elevations. (Scale – ¼” equals 1”-0)
• These sheets will include all necessary dimensions, material labels, roof slopes, pertinent dimensions.
• All architectural elements relating to the exterior of the home.
• Dormer locations on two story homes, if any.
Electrical Schematic Suggested light switch, outlet, ceiling fan locations, electrical symbol chart.
Section Drawings Cross sections of the home showing floor-ceiling heights, insulation, flooring and roofing details, as necessary.
Millwork Elevations Suggested cabinet, fireplace elevations as well as any distinctive architectural elements.
Roof Plan & Roof Framing Plan Shows the roof slopes & suggested rafter layouts.
What is not included These details can be provided by your builder or local suppliers.
• Details/layout of heating/cooling systems and ductwork.
• Plumbing schematics, pipe sizes, locations and details.
• Electrical wiring layouts and details.
• Standard, daylight or partial basement plans.
• Any other location specific engineering.
• Specification Sheets
Code Compliance Plans are drawn to meet the International Residnetial Code. In all cases specific state and local codes may apply. Consult with state and local building officials in determining your code requirements.
Plan Modifications
Want to make changes?
Receive a FREE modification estimate in one of 3 ways. Our modification team is ready to help you adjust any plan to fit your needs. The ReDesign process is simple and estimates are free!
2. Print, complete and fax this PDF Form to us at 1-800-675-4916.
3. Want to talk to an expert? Call us at 913-938-8097 (Canadian customers, please call 800-361-7526) to discuss modifications.
Note: - a sketch of the changes or the website floor plan marked up to reflect changes is a great way to convey the modifications in addition to a written list.
We Work Fast!
When you submit your ReDesign request, a designer will contact you within 24 business hours with a quote.
You can have your plan redesigned in as little as 14 - 21 days!
We look forward to hearing from you!
Start today planning for tomorrow!
Cost To Build
What will it cost to build your new home?
Let us help you find out!
COOLhouseplans.com has partnered with Home-Cost.com to provide you the most accurate, interactive online estimator available. Home-Cost.com is a proven leader in residential cost estimating software for over 20 years.
No Risk Offer: Order your Home-Cost Estimate now for just $29.95! We will provide you with a discount code in your receipt for when you decide to order any plan on our website than will more than pay you back for ordering an estimate.
Accurate. Fast. Trusted. Construction Cost Estimates That Save You Time and Money.
$29.95 per plan
** Available for U.S. and Canada
With your 30-day online cost-to-build estimate you can start enjoying these benefits today.
INSTANT RESULTS: Immediate turnaround—no need to wait days for a cost report.
RELIABLE: Gain peace of mind and confidence that comes with a reliable cost estimate for your custom home.
INTERACTIVE: Instantly see how costs change as you vary design options and quality levels of materials!
REDUCE RISK: Minimize potential cost overruns by becoming empowered to make smart design decisions. Get estimates that save thousands in costly errors.
PEACE OF MIND: Take the financial guesswork out of building your dream home.
DETAILED COSTING: Detailed, data-backed estimates with +/-120 lines of costs / options for your project.
EDITABLE COSTS: Edit the line-item labor & material price with the “Add/Deduct” field if you want to change a cost.
A:Yes you can! Please click the "Modifications" tab above to get more information.
Q:What is the estimated price to build this plan?
A:The national average for a house is running right at $125.00 per SF. You can get more detailed information by clicking the Cost-To-Build tab above. Sorry, but we cannot give cost estimates for garage, multifamily or project plans.
Ask A Question
Got a question about this plan? Ask the Designer any question you may have. NOTE: If you have a plan modification question, please click on the Plan Modifications tab above.
Our Low Price Guarantee
If you find the exact same plan featured on a competitor's web site at a lower price, advertised OR special SALE price, we will beat the competitor's price by 5% of the total, not just 5% of the difference! To take advantage of our guarantee, please call us at 800-482-0464 or email us the website and plan number when you are ready to order. Our guarantee extends up to 4 weeks after your purchase, so you know you can buy now with confidence.