House Plan 60214 - Ranch Style with 1598 Sq Ft, 3 Bed, 2 Bath | COOLhouseplans.com
Call 800-482-0464
Ranch House Plan 60214 with 3 Beds, 2 Baths, 2 Car Garage Elevation

Elevation

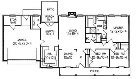
Ranch House Plan 60214 with 3 Beds, 2 Baths, 2 Car Garage Level One

Level One

House Plans by this Designer

Plan Number 60336 - 3712 Square Feet
Plan Number 60335 - 3682 Square Feet
Plan Number 60334 - 3738 Square Feet
Plan Number 60333 - 3723 Square Feet
Plan Number 60332 - 3600 Square Feet
Plan Number 60331 - 3592 Square Feet
Plan Number 60330 - 3596 Square Feet
Plan Number 60329 - 3522 Square Feet
Plan Number 60328 - 3509 Square Feet
See More Plans by this Designer