Multi-Family Plan 62362 - with 3542 Sq Ft, 6 Bed, 4 Bath, 2 Half | COOLhouseplans.com
Call 800-482-0464
Multi-Family Plan 62362 with 6 Beds, 6 Baths, 4 Car Garage Elevation

Elevation

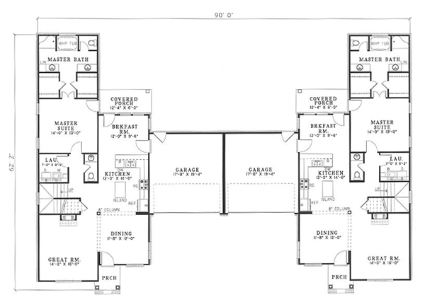
Multi-Family Plan 62362 with 6 Beds, 6 Baths, 4 Car Garage Level One

Level One

Multi-Family Plan 62362 with 6 Beds, 6 Baths, 4 Car Garage Level Two

Level Two

Multi-Family Plans by this Designer

Plan Number 62146 - 2578 Square Feet
Plan Number 62140 - 2727 Square Feet
Plan Number 82307 - 2916 Square Feet
Plan Number 82306 - 2902 Square Feet
Plan Number 82305 - 2758 Square Feet
Plan Number 82304 - 2688 Square Feet
Plan Number 82178 - 3815 Square Feet
Plan Number 82175 - 6408 Square Feet
Plan Number 82174 - 3528 Square Feet
See More Plans by this Designer