House Plan 65402 - Victorian Style with 1972 Sq Ft, 3 Bed, 1 Bath | COOLhouseplans.com
Call 800-482-0464
European, Victorian House Plan 65402 with 3 Beds, 2 Baths, 1 Car Garage Elevation

Elevation

European, Victorian House Plan 65402 with 3 Beds, 2 Baths, 1 Car Garage Level One

Level One

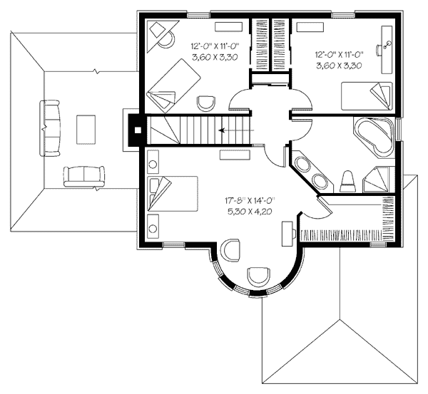
European, Victorian House Plan 65402 with 3 Beds, 2 Baths, 1 Car Garage Level Two

Level Two

Related Plans

Plan Number 65416
Plan Number 65354
Plan Number 65365

House Plans by this Designer

Plan Number 81883 - 1787 Square Feet
Plan Number 81856 - 1764 Square Feet
Plan Number 81855 - 1917 Square Feet
Plan Number 81854 - 2502 Square Feet
Plan Number 81850 - 2758 Square Feet
Plan Number 81844 - 741 Square Feet
Plan Number 81853 - 1970 Square Feet
Plan Number 81852 - 2938 Square Feet
Plan Number 81851 - 1947 Square Feet
See More Plans by this Designer