House Plan 70116 - Traditional Style with 1360 Sq Ft, 3 Bed, 2 Ba | COOLhouseplans.com
Call 800-482-0464
Traditional House Plan 70116 with 3 Beds, 2 Baths, 2 Car Garage Elevation

Elevation

Photographs may show modified designs.
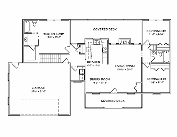
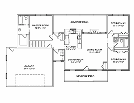
Traditional House Plan 70116 with 3 Beds, 2 Baths, 2 Car Garage Level One

Level One

Traditional House Plan 70116 with 3 Beds, 2 Baths, 2 Car Garage Rear Elevation

Rear Elevation

Photographs may show modified designs. Image quality may be compromised.

House Plans by this Designer

Plan Number 70303 - 1630 Square Feet
Plan Number 70302 - 1714 Square Feet
Plan Number 70301 - 1948 Square Feet
Plan Number 70300 - 2078 Square Feet
Plan Number 70199 - 1480 Square Feet
Plan Number 70198 - 1572 Square Feet
Plan Number 70197 - 1806 Square Feet
Plan Number 70196 - 1440 Square Feet
Plan Number 70195 - 1980 Square Feet
See More Plans by this Designer