House Plan 72418 - Traditional Style with 1464 Sq Ft, 3 Bed, 2 Ba | COOLhouseplans.com
Call 800-482-0464
Traditional House Plan 72418 with 3 Beds, 2 Baths, 2 Car Garage Elevation

Elevation

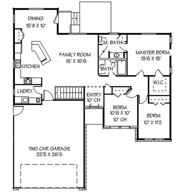
Traditional House Plan 72418 with 3 Beds, 2 Baths, 2 Car Garage Level One

Level One

Traditional House Plan 72418 with 3 Beds, 2 Baths, 2 Car Garage Lower Level

Lower Level

House Plans by this Designer

Plan Number 72440 - 5097 Square Feet
Plan Number 72439 - 2772 Square Feet
Plan Number 72438 - 2365 Square Feet
Plan Number 72436 - 2143 Square Feet
Plan Number 72437 - 2318 Square Feet
Plan Number 72435 - 2120 Square Feet
Plan Number 72434 - 1670 Square Feet
Plan Number 72433 - 1624 Square Feet
Plan Number 72431 - 1417 Square Feet
See More Plans by this Designer