House Plan 79762 - Traditional Style with 4288 Sq Ft, 4 Bed, 3 Ba | COOLhouseplans.com
Call 800-482-0464
Traditional House Plan 79762 with 4 Beds, 4 Baths, 3 Car Garage Elevation

Elevation

Photographs may show modified designs.
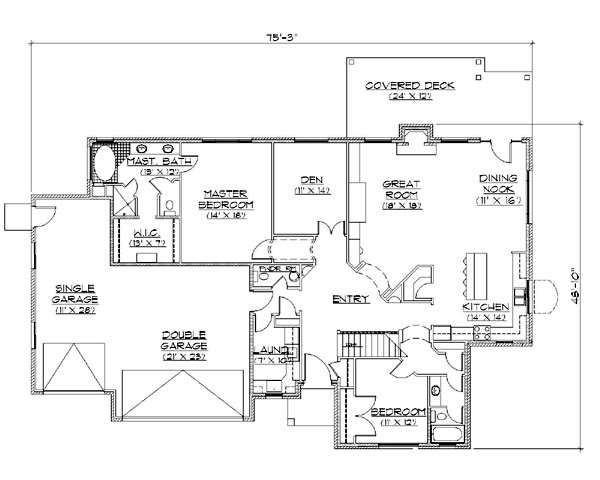
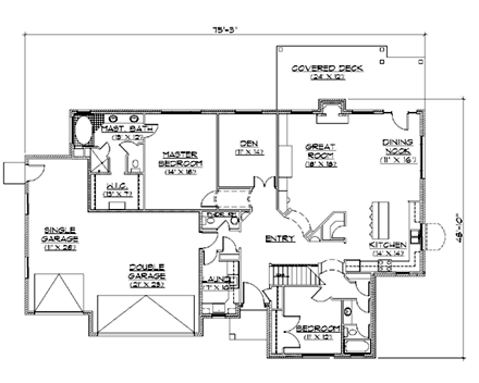
Traditional House Plan 79762 with 4 Beds, 4 Baths, 3 Car Garage Level One

Level One

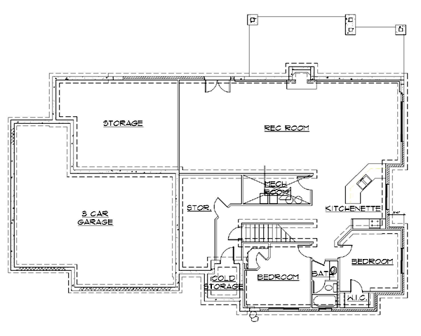
Traditional House Plan 79762 with 4 Beds, 4 Baths, 3 Car Garage Lower Level

Lower Level

Traditional House Plan 79762 with 4 Beds, 4 Baths, 3 Car Garage Rear Elevation

Rear Elevation

Photographs may show modified designs. Image quality may be compromised.

House Plans by this Designer

See More Plans by this Designer