House Plan 79769 - European Style with 2243 Sq Ft, 4 Bed, 3 Bath, | COOLhouseplans.com
Call 800-482-0464
European House Plan 79769 with 4 Beds, 4 Baths, 2 Car Garage Elevation

Elevation

Photographs may show modified designs.
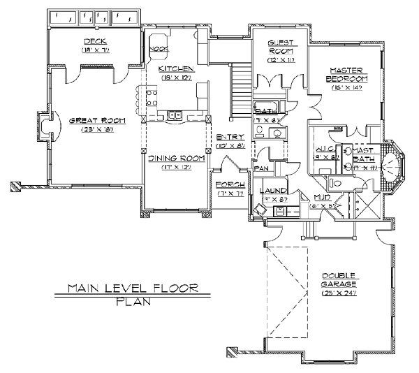
European House Plan 79769 with 4 Beds, 4 Baths, 2 Car Garage Level One

Level One

European House Plan 79769 with 4 Beds, 4 Baths, 2 Car Garage Lower Level

Lower Level

European House Plan 79769 with 4 Beds, 4 Baths, 2 Car Garage Rear Elevation

Rear Elevation

Photographs may show modified designs. Image quality may be compromised.

House Plans by this Designer

See More Plans by this Designer