CAD File: $5,778.00 Single Build License issued on CAD File orders.
Right Reading (True) Reverse: $375.00
All sets will be Readable Reverse copies. Turn around time is usually 3 to 5 business days.
Need Printed Sets?
It seems that this plan only offers electronic (PDF or CAD) files. If you also need Printed Sets, please call 1-800-482-0464, x403 to discuss possible options.
Available Foundation Types:
Walkout Basement
: No Additional Fee
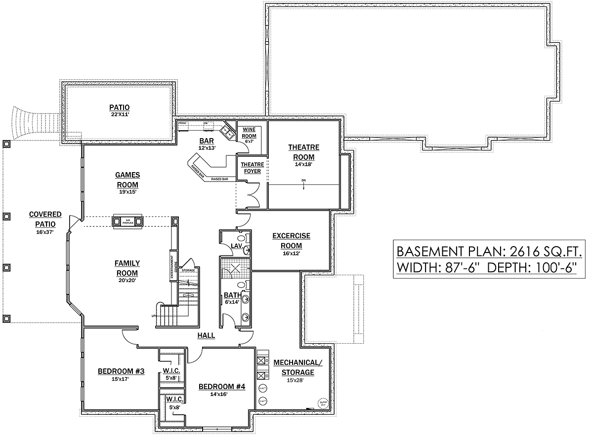
Total Living Area may increase with Basement Foundation option.
Exterior elevations - Elevations will be produced of all four sides of the home showing all exterior finishes, window and door details, lot grading, deck locations, etc. Additional elevations and details may be required on a per plan basis.
Floor plans - The conceptual plans you started off with, now get all of the final detail added into the drawings. The floor plans will go through a comprehensive structural analysis. Any unusual conditions will be specifically noted or referred on to a structural engineer for further analysis. The locations of all elements such as; windows, doors, walls, cabinetry, ceiling details and staircases, will be precisely determined. Interior elevation details of elements such as arches and fireplaces may be produced on a per plan basis or at the direction of our client.
Foundation plan - This drawing will be produced in addition to any basement development plans to specifically note all foundation walls, beam locations, telepost pads, plumbing rough-ins, and foundation steps in one simple and easy to read drawing.
Cross sections - These drawings are intended to show the specific heights and construction of walls, foundations, floors and roof. Multiple sections may be required to fully illustrate the construction of the home.
Roof plan - For complex roof designs especially, a well laid out roof plan will address all roof pitches, overhang depths, fascia sizes and drainage solutions for any valleys in the roof layout.
Building specifications - The specifications are a comprehensive list of all the various materials and standards that the home will be constructed with. Clients can request specific items in their specification or choose a standard set of construction specifications.
Lighting and electrical plans - These optional plans show locations of all the lights, switches and outlets for the interior and exterior of the home.
Plan Modifications
Want to make changes?
Receive a FREE modification estimate in one of 3 ways. Our modification team is ready to help you adjust any plan to fit your needs. The ReDesign process is simple and estimates are free!
2. Print, complete and fax this PDF Form to us at 1-800-675-4916.
3. Want to talk to an expert? Call us at 913-938-8097 (Canadian customers, please call 800-361-7526) to discuss modifications.
Note: - a sketch of the changes or the website floor plan marked up to reflect changes is a great way to convey the modifications in addition to a written list.
We Work Fast!
When you submit your ReDesign request, a designer will contact you within 24 business hours with a quote.
You can have your plan redesigned in as little as 14 - 21 days!
We look forward to hearing from you!
Start today planning for tomorrow!
Cost To Build
What will it cost to build your new home?
Let us help you find out!
COOLhouseplans.com has partnered with Home-Cost.com to provide you the most accurate, interactive online estimator available. Home-Cost.com is a proven leader in residential cost estimating software for over 20 years.
No Risk Offer: Order your Home-Cost Estimate now for just $29.95! We will provide you with a discount code in your receipt for when you decide to order any plan on our website than will more than pay you back for ordering an estimate.
Accurate. Fast. Trusted. Construction Cost Estimates That Save You Time and Money.
$29.95 per plan
** Available for U.S. and Canada
With your 30-day online cost-to-build estimate you can start enjoying these benefits today.
INSTANT RESULTS: Immediate turnaround—no need to wait days for a cost report.
RELIABLE: Gain peace of mind and confidence that comes with a reliable cost estimate for your custom home.
INTERACTIVE: Instantly see how costs change as you vary design options and quality levels of materials!
REDUCE RISK: Minimize potential cost overruns by becoming empowered to make smart design decisions. Get estimates that save thousands in costly errors.
PEACE OF MIND: Take the financial guesswork out of building your dream home.
DETAILED COSTING: Detailed, data-backed estimates with +/-120 lines of costs / options for your project.
EDITABLE COSTS: Edit the line-item labor & material price with the “Add/Deduct” field if you want to change a cost.
A:Yes you can! Please click the "Modifications" tab above to get more information.
Q:What is the estimated price to build this plan?
A:The national average for a house is running right at $125.00 per SF. You can get more detailed information by clicking the Cost-To-Build tab above. Sorry, but we cannot give cost estimates for garage, multifamily or project plans.
Ask A Question
Got a question about this plan? Ask the Designer any question you may have. NOTE: If you have a plan modification question, please click on the Plan Modifications tab above.
Our Low Price Guarantee
If you find the exact same plan featured on a competitor's web site at a lower price, advertised OR special SALE price, we will beat the competitor's price by 5% of the total, not just 5% of the difference! To take advantage of our guarantee, please call us at 800-482-0464 or email us the website and plan number when you are ready to order. Our guarantee extends up to 4 weeks after your purchase, so you know you can buy now with confidence.