House Plan 81843 - Traditional Style with 3166 Sq Ft, 4 Bed, 3 Ba | COOLhouseplans.com
Call 800-482-0464
Craftsman, New American, Traditional House Plan 81843 with 4 Beds, 4 Baths, 2 Car Garage

Info Sheet

Craftsman, New American, Traditional House Plan 81843 with 4 Beds, 4 Baths, 2 Car Garage Elevation

Elevation

Photographs may show modified designs.
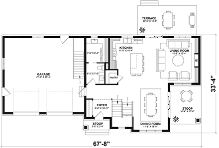
Craftsman, New American, Traditional House Plan 81843 with 4 Beds, 4 Baths, 2 Car Garage Level One

Level One

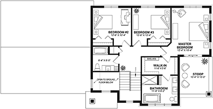
Craftsman, New American, Traditional House Plan 81843 with 4 Beds, 4 Baths, 2 Car Garage Level Two

Level Two

Craftsman, New American, Traditional House Plan 81843 with 4 Beds, 4 Baths, 2 Car Garage Lower Level

Lower Level

Craftsman, New American, Traditional House Plan 81843 with 4 Beds, 4 Baths, 2 Car Garage Rear Elevation

Rear Elevation

Photographs may show modified designs. Image quality may be compromised.

House Plans by this Designer

Plan Number 81883 - 1787 Square Feet
Plan Number 81856 - 1764 Square Feet
Plan Number 81855 - 1917 Square Feet
Plan Number 81854 - 2502 Square Feet
Plan Number 81850 - 2758 Square Feet
Plan Number 81844 - 741 Square Feet
Plan Number 81853 - 1970 Square Feet
Plan Number 81852 - 2938 Square Feet
Plan Number 81851 - 1947 Square Feet
See More Plans by this Designer