House Plan 84118 - Ranch Style with 3025 Sq Ft, 4 Bed, 3 Bath, 1 | COOLhouseplans.com
Call 800-482-0464
Contemporary, Ranch House Plan 84118 with 4 Beds, 4 Baths, 3 Car Garage Elevation

Elevation

Photographs may show modified designs.
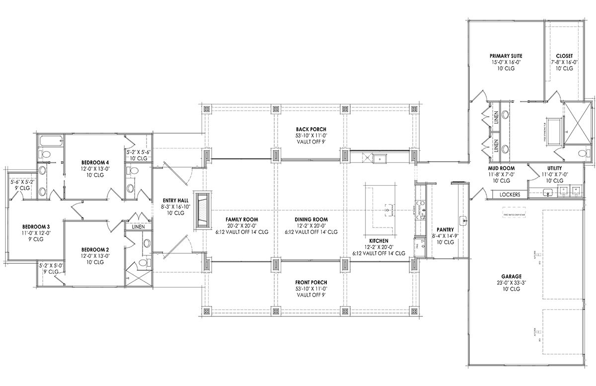
Contemporary, Ranch House Plan 84118 with 4 Beds, 4 Baths, 3 Car Garage Level One

Level One

Contemporary, Ranch House Plan 84118 with 4 Beds, 4 Baths, 3 Car Garage Rear Elevation

Rear Elevation

Photographs may show modified designs. Image quality may be compromised.

House Plans by this Designer

Plan Number 84124 - 3817 Square Feet
Plan Number 84123 - 2500 Square Feet
Plan Number 84117 - 3145 Square Feet
Plan Number 84116 - 3028 Square Feet
Plan Number 84115 - 3031 Square Feet
Plan Number 84114 - 3782 Square Feet
Plan Number 84113 - 3226 Square Feet
Plan Number 84112 - 3938 Square Feet
Plan Number 84111 - 3029 Square Feet
See More Plans by this Designer