House Plan 85148 - Craftsman Style with 3400 Sq Ft, 6 Bed, 5 Bath | COOLhouseplans.com
Call 800-482-0464
Craftsman House Plan 85148 with 6 Beds, 5 Baths Elevation

Elevation

Photographs may show modified designs.
Craftsman House Plan 85148 with 6 Beds, 5 Baths Level One

Level One

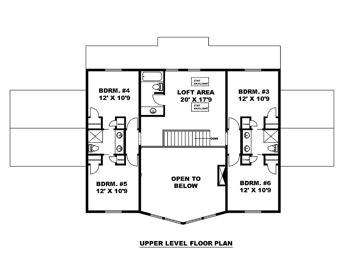
Craftsman House Plan 85148 with 6 Beds, 5 Baths Level Two

Level Two

Craftsman House Plan 85148 with 6 Beds, 5 Baths Rear Elevation

Rear Elevation

Photographs may show modified designs. Image quality may be compromised.

House Plans by this Designer

Plan Number 87205 - 2281 Square Feet
Plan Number 87204 - 2750 Square Feet
Plan Number 87203 - 3863 Square Feet
Plan Number 87202 - 3430 Square Feet
Plan Number 87201 - 1512 Square Feet
Plan Number 87200 - 3646 Square Feet
Plan Number 87199 - 2400 Square Feet
Plan Number 87198 - 2652 Square Feet
Plan Number 87197 - 2281 Square Feet
See More Plans by this Designer