CAD File: $2,874.00 Single Build License issued on CAD File orders.
Concerning PDF or CAD File Orders: Designer requires that a End User License Agreement be signed before fulfilling PDF and CAD File order.
Right Reading (True) Reverse: $350.00
All sets will be Readable Reverse copies. Turn around time is usually 3 to 5 business days.
Need Printed Sets?
It seems that this plan only offers electronic (PDF or CAD) files. If you also need Printed Sets, please call 1-800-482-0464, x403 to discuss possible options.
$95.00 to add a PDF File to a CAD file order. Call the sales office to add this option to your order.
Available Foundation Types:
Walkout Basement
: No Additional Fee
Total Living Area may increase with Basement Foundation option.
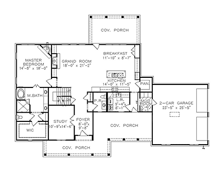
1. Exterior elevations – Included are front, rear, left and right side views of the exterior of the house. Exterior materials, construction details and measurements are also noted.
2. Foundation Plan – Includes layout of foundation support walls, plus excavated and unexcavated areas, if applicable.
3. Detailed Floor Plans – These plans show the layout of each floor of the house, including room dimensions, window and doors sizes and keys for cross section details provided later in the plans. Engineered floor joist, ceiling joist and roof plans are not included in some plans. Local engineers or manufacturing engineers are widely available to supply the services that apply to local geographic conditions.
4. Interior Details – These drawings show the specific details and design of special interior features.
5. Roof Plan – Includes the overall layout for roof construction. If trusses are used, we recommend using a local truss manufacturer to ensure compliance with local codes and regulations.
6. Cross Section Details – Important changes in floor, ceiling and roof heights or the relationship of one level to another are called out. Exterior details such as railing and banding may also be shown.
7. Electrical – Electrical floor plan schematics for 1st and 2nd floors.
Plan Modifications
Want to make changes?
Receive a FREE modification estimate.
Plan modification is a way of turning a stock plan into your unique custom plan. It's still just a small fraction of the price you would pay to create a home plan from scratch. We believe that modification estimates should be FREE!
We provide a modification service so that you can customize your new home plan to fit your budget and lifestyle.
Click to Email Us This is the best and quickest way to get a modification quote!
Please include your preferred Foundation Type and a Specific List of Changes. You can also attach a Sketch of Changes.
It's as simple as that!
Cost To Build
What will it cost to build your new home?
Let us help you find out!
COOLhouseplans.com has partnered with Home-Cost.com to provide you the most accurate, interactive online estimator available. Home-Cost.com is a proven leader in residential cost estimating software for over 20 years.
No Risk Offer: Order your Home-Cost Estimate now for just $29.95! We will provide you with a discount code in your receipt for when you decide to order any plan on our website than will more than pay you back for ordering an estimate.
Accurate. Fast. Trusted. Construction Cost Estimates That Save You Time and Money.
$29.95 per plan
** Available for U.S. and Canada
With your 30-day online cost-to-build estimate you can start enjoying these benefits today.
INSTANT RESULTS: Immediate turnaround—no need to wait days for a cost report.
RELIABLE: Gain peace of mind and confidence that comes with a reliable cost estimate for your custom home.
INTERACTIVE: Instantly see how costs change as you vary design options and quality levels of materials!
REDUCE RISK: Minimize potential cost overruns by becoming empowered to make smart design decisions. Get estimates that save thousands in costly errors.
PEACE OF MIND: Take the financial guesswork out of building your dream home.
DETAILED COSTING: Detailed, data-backed estimates with +/-120 lines of costs / options for your project.
EDITABLE COSTS: Edit the line-item labor & material price with the “Add/Deduct” field if you want to change a cost.
A:Yes you can! Please click the "Modifications" tab above to get more information.
Q:What is the estimated price to build this plan?
A:The national average for a house is running right at $125.00 per SF. You can get more detailed information by clicking the Cost-To-Build tab above. Sorry, but we cannot give cost estimates for garage, multifamily or project plans.
Ask A Question
Got a question about this plan? Ask the Designer any question you may have. NOTE: If you have a plan modification question, please click on the Plan Modifications tab above.
Our Low Price Guarantee
If you find the exact same plan featured on a competitor's web site at a lower price, advertised OR special SALE price, we will beat the competitor's price by 5% of the total, not just 5% of the difference! To take advantage of our guarantee, please call us at 800-482-0464 or email us the website and plan number when you are ready to order. Our guarantee extends up to 4 weeks after your purchase, so you know you can buy now with confidence.