PDF Study Set: $900.00
Get your plans fast! A PDF Study Set is a complete set of plans stamped NOT FOR CONSTRUCTION. Not considered a license-to-build. Great for bidding purposes. Customer can upgrade within 90 days.
Exterior Elevations Scaled drawings of the front, rear, sides of the home. Information pertaining to the exterior finish materials, roof pitches and exterior height dimensions.
Typical Wall Section This section will address insulation, roof components, and interior and exterior wall finishes. Your plans will be designed with either 2x4 or 2x6 exterior walls, but most professional contractors can easily adapt the plans to the wall thickness you require.
Fireplace Details If the home you have chosen includes a fireplace, the fireplace detail will show typical methods to construct the firebox, hearth and flue chase for masonry units, or a wood frame chase for a zero-clearance unit. Available for most plans.
Foundation Plan These plans will accurately dimension the footprint of your home including load bearing points and beam placement if applicable. The foundation style will vary from plan to plan.
Roof Plan The information necessary to construct the roof will be included with your home plans. Some plans will reference roof trusses, while many others contain schematic framing plans. These framing plans will indicate the lumber sizes necessary for the rafters and ridgeboards based on the designated roof loads.
Typical Cross Section A cut-away cross-section through the entire home shows your building contractor the exact correlation of construction components at all levels of the house. It will help to clarify the load bearing points from the roof all the way down to the basement. Available for most plans.
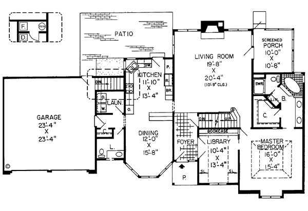
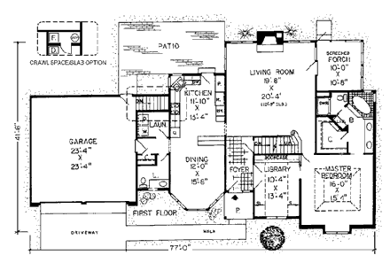
Detailed Floor Plans The floor plans of your home accurately dimension the positioning of all walls, doors, windows, stairs and permanent fixtures. They will show you the relationship and dimensions of rooms, closets and traffic patterns. The schematic of the electrical layout may be included in the plan.
Stair Details If stairs are an element of the design you have chosen, the plans will show the necessary information to build these, either through a stair cross section, or on the floor plans.
Plan Modifications
Want to make changes?
Plan modification is a way of turning a stock plan into your unique custom plan. It's still just a small fraction of the price you would pay to create a home plan from scratch. You will receive a FREE, no obligation, modification estimate to get exactly the home plan you've been dreaming of. Simply contact the modification department 1 of 3 ways:
Call 866-465-5866 and talk to a live person that can give you and FREE modification estimate over the phone!
Email Us - Please Include your telephone number, plan number, foundation type, state you are building in and a specific list of changes.
Fax: 651-602-5050 - Make sure to include a cover sheet with your contact info. Make attention to the COOLhouseplans.com Modification Department.
Cost To Build
What will it cost to build your new home?
Let us help you find out!
COOLhouseplans.com has partnered with Home-Cost.com to provide you the most accurate, interactive online estimator available. Home-Cost.com is a proven leader in residential cost estimating software for over 20 years.
No Risk Offer: Order your Home-Cost Estimate now for just $29.95! We will provide you with a discount code in your receipt for when you decide to order any plan on our website than will more than pay you back for ordering an estimate.
Accurate. Fast. Trusted. Construction Cost Estimates That Save You Time and Money.
$29.95 per plan
** Available for U.S. and Canada
With your 30-day online cost-to-build estimate you can start enjoying these benefits today.
INSTANT RESULTS: Immediate turnaround—no need to wait days for a cost report.
RELIABLE: Gain peace of mind and confidence that comes with a reliable cost estimate for your custom home.
INTERACTIVE: Instantly see how costs change as you vary design options and quality levels of materials!
REDUCE RISK: Minimize potential cost overruns by becoming empowered to make smart design decisions. Get estimates that save thousands in costly errors.
PEACE OF MIND: Take the financial guesswork out of building your dream home.
DETAILED COSTING: Detailed, data-backed estimates with +/-120 lines of costs / options for your project.
EDITABLE COSTS: Edit the line-item labor & material price with the “Add/Deduct” field if you want to change a cost.
A:Yes you can! Please click the "Modifications" tab above to get more information.
Q:What is the estimated price to build this plan?
A:The national average for a house is running right at $125.00 per SF. You can get more detailed information by clicking the Cost-To-Build tab above. Sorry, but we cannot give cost estimates for garage, multifamily or project plans.
Ask A Question
Got a question about this plan? Ask the Designer any question you may have. NOTE: If you have a plan modification question, please click on the Plan Modifications tab above.
Our Low Price Guarantee
If you find the exact same plan featured on a competitor's web site at a lower price, advertised OR special SALE price, we will beat the competitor's price by 5% of the total, not just 5% of the difference! To take advantage of our guarantee, please call us at 800-482-0464 or email us the website and plan number when you are ready to order. Our guarantee extends up to 4 weeks after your purchase, so you know you can buy now with confidence.