House Plan 41950 - Farmhouse Style with 2454 Sq Ft, 3 Bed, 3 Bath | COOLhouseplans.com
Call 800-482-0464
Cottage, Country, Farmhouse House Plan 41950 with 3 Beds, 4 Baths, 2 Car Garage Elevation

Elevation

Photographs may show modified designs.
Cottage, Country, Farmhouse House Plan 41950 with 3 Beds, 4 Baths, 2 Car Garage Level One

Level One

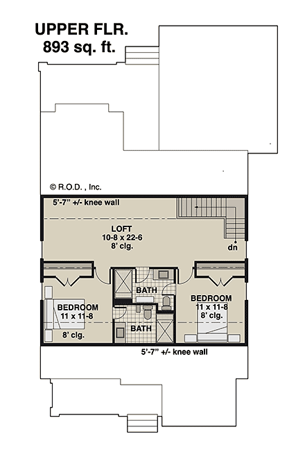
Cottage, Country, Farmhouse House Plan 41950 with 3 Beds, 4 Baths, 2 Car Garage Level Two

Level Two

Cottage, Country, Farmhouse House Plan 41950 with 3 Beds, 4 Baths, 2 Car Garage Rear Elevation

Rear Elevation

Photographs may show modified designs. Image quality may be compromised.

House Plans by this Designer

Plan Number 101910 - 2596 Square Feet
Plan Number 41971 - 2733 Square Feet
Plan Number 101908 - 2230 Square Feet
Plan Number 101906 - 2230 Square Feet
Plan Number 41972 - 2733 Square Feet
Plan Number 41991 - 2403 Square Feet
Plan Number 41968 - 3136 Square Feet
Plan Number 41964 - 2403 Square Feet
Plan Number 42649 - 5462 Square Feet
See More Plans by this Designer