House Plan 50609 - Traditional Style with 5472 Sq Ft, 4 Bed, 2 Ba | COOLhouseplans.com
Call 800-482-0464
Colonial, Cottage, Country, Craftsman, Farmhouse, Ranch, Southern, Traditional House Plan 50609 with 4 Beds, 3 Baths, 2 Car Garage Elevation

Elevation

Photographs may show modified designs.
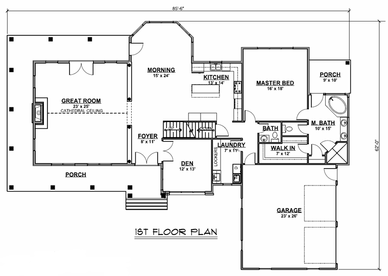
Colonial, Cottage, Country, Craftsman, Farmhouse, Ranch, Southern, Traditional House Plan 50609 with 4 Beds, 3 Baths, 2 Car Garage Level One

Level One

Colonial, Cottage, Country, Craftsman, Farmhouse, Ranch, Southern, Traditional House Plan 50609 with 4 Beds, 3 Baths, 2 Car Garage Level Two

Level Two

House Plans by this Designer

Plan Number 100761 - 2081 Square Feet
Plan Number 100760 - 3032 Square Feet
Plan Number 100759 - 2180 Square Feet
Plan Number 41813 - 3222 Square Feet
Plan Number 41812 - 5195 Square Feet
Plan Number 41811 - 1992 Square Feet
Plan Number 41810 - 3007 Square Feet
Plan Number 41814 - 2813 Square Feet
Plan Number 100756 - 2322 Square Feet
See More Plans by this Designer