House Plan 52231 - Traditional Style with 1280 Sq Ft, 3 Bed, 2 Ba | COOLhouseplans.com
Call 800-482-0464
Ranch, Traditional House Plan 52231 with 3 Beds, 3 Baths, 2 Car Garage Elevation

Elevation

Photographs may show modified designs.
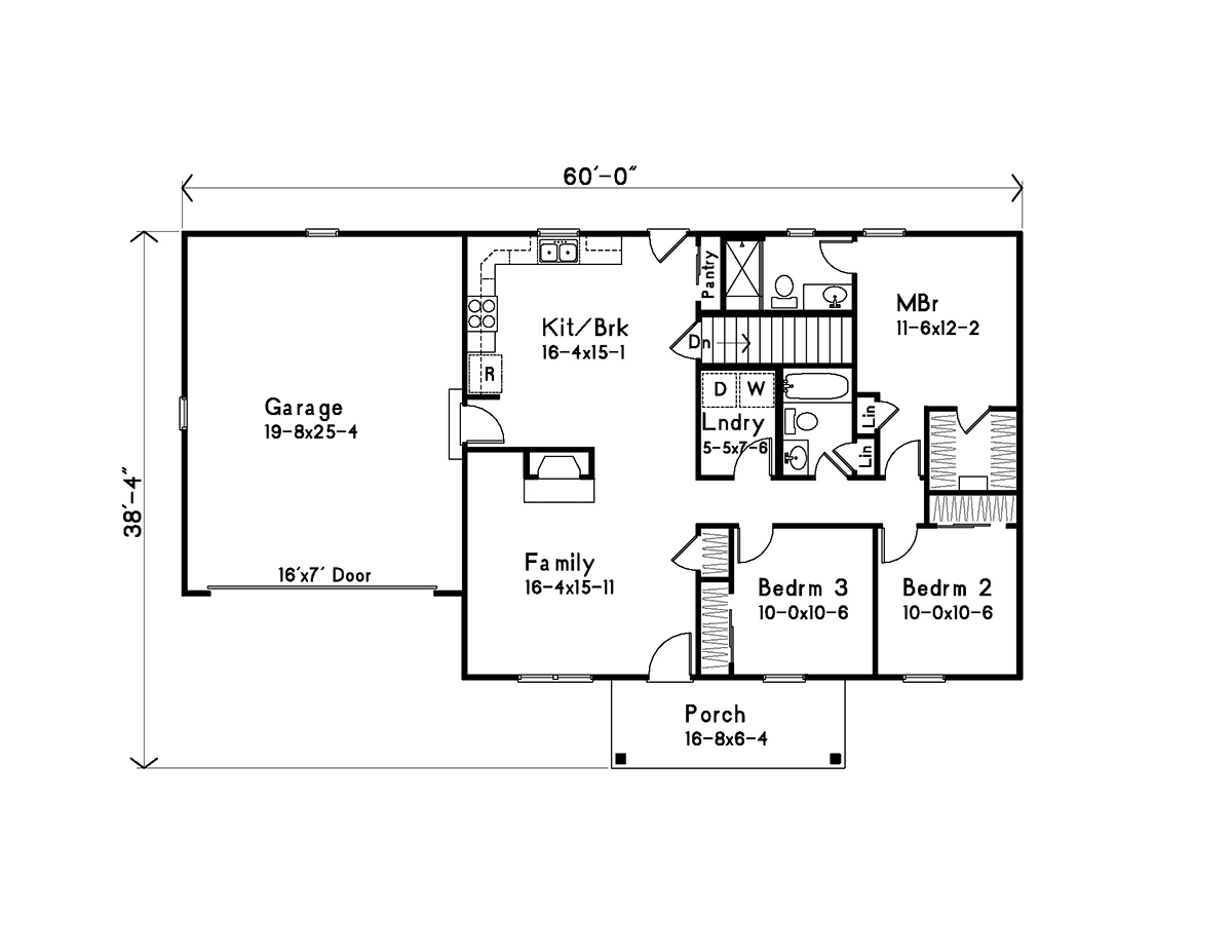
Ranch, Traditional House Plan 52231 with 3 Beds, 3 Baths, 2 Car Garage Level One

Level One

Ranch, Traditional House Plan 52231 with 3 Beds, 3 Baths, 2 Car Garage Rear Elevation

Rear Elevation

Photographs may show modified designs. Image quality may be compromised.

House Plans by this Designer

Plan Number 52221 - 2065 Square Feet
Plan Number 52220 - 1088 Square Feet
Plan Number 52219 - 1819 Square Feet
Plan Number 52218 - 2156 Square Feet
Plan Number 52217 - 2041 Square Feet
Plan Number 52211 - 1449 Square Feet
Plan Number 49148 - 480 Square Feet
Plan Number 49144 - 1680 Square Feet
Plan Number 49143 - 2179 Square Feet
See More Plans by this Designer