House Plan 58121 - Traditional Style with 1860 Sq Ft, 3 Bed, 2 Ba | COOLhouseplans.com
Call 800-482-0464
Traditional House Plan 58121 with 3 Beds, 2.5 Baths, 2 Car Garage Elevation

Elevation

Photographs may show modified designs.
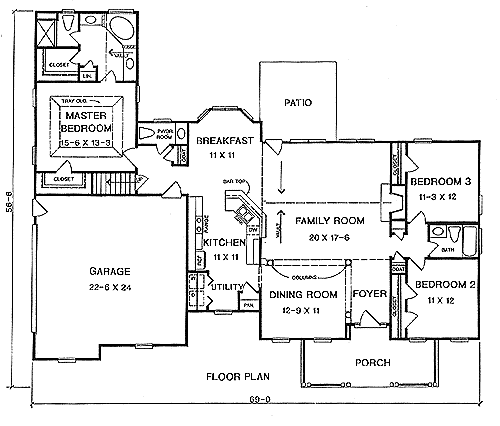
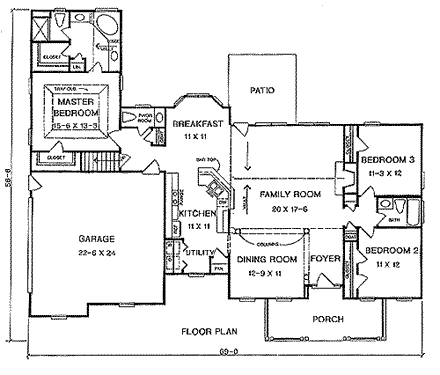
Traditional House Plan 58121 with 3 Beds, 2.5 Baths, 2 Car Garage Level One

Level One

Traditional House Plan 58121 with 3 Beds, 2.5 Baths, 2 Car Garage Level Two

Level Two

House Plans by this Designer

Plan Number 60090 - 3740 Square Feet
Plan Number 60088 - 3383 Square Feet
Plan Number 76739 - 1548 Square Feet
Plan Number 58299 - 2971 Square Feet
Plan Number 60077 - 3537 Square Feet
Plan Number 58253 - 3337 Square Feet
Plan Number 76723 - 2808 Square Feet
Plan Number 58288 - 2488 Square Feet
Plan Number 58285 - 3180 Square Feet
See More Plans by this Designer