House Plan 58595 - European Style with 2038 Sq Ft, 4 Bed, 3 Bath | COOLhouseplans.com
Call 800-482-0464
European House Plan 58595 with 4 Beds, 3 Baths, 2 Car Garage Elevation

Elevation

European House Plan 58595 with 4 Beds, 3 Baths, 2 Car Garage Level One

Level One

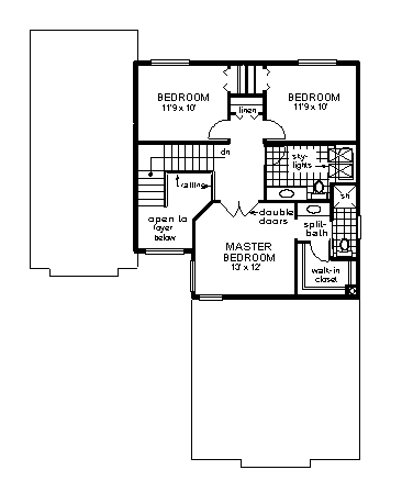
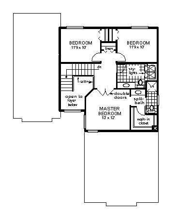
European House Plan 58595 with 4 Beds, 3 Baths, 2 Car Garage Level Two

Level Two

House Plans by this Designer

Plan Number 58881 - 1352 Square Feet
Plan Number 58880 - 1256 Square Feet
Plan Number 58879 - 2788 Square Feet
Plan Number 58878 - 1388 Square Feet
Plan Number 58877 - 1095 Square Feet
Plan Number 58876 - 1346 Square Feet
Plan Number 58875 - 1977 Square Feet
Plan Number 58874 - 2136 Square Feet
Plan Number 58873 - 3447 Square Feet
See More Plans by this Designer