House Plan 60125 - Traditional Style with 1402 Sq Ft | COOLhouseplans.com
Call 800-482-0464
Country, Ranch, Traditional House Plan 60125, 2 Car Garage Elevation

Elevation

Photographs may show modified designs.
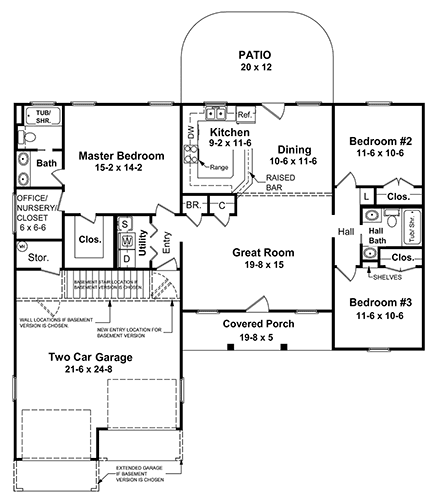
Country, Ranch, Traditional House Plan 60125, 2 Car Garage Level One

Level One

Country, Ranch, Traditional House Plan 60125, 2 Car Garage Rear Elevation

Rear Elevation

Photographs may show modified designs. Image quality may be compromised.

House Plans by this Designer

Plan Number 60186 - 2024 Square Feet
Plan Number 60187 - 2085 Square Feet
Plan Number 59989 - 2023 Square Feet
Plan Number 59075 - 2501 Square Feet
Plan Number 59074 - 2251 Square Feet
Plan Number 59073 - 2200 Square Feet
Plan Number 59072 - 2004 Square Feet
Plan Number 59071 - 2003 Square Feet
Plan Number 59070 - 2000 Square Feet
See More Plans by this Designer