House Plan 60764 - Mediterranean Style with 2750 Sq Ft, 4 Bed, 3 | COOLhouseplans.com

20% Off Cyber Monday Sale! Promo Code CYBERMONDAY at Checkout

Call 800-482-0464
Mediterranean House Plan 60764 with 4 Beds, 3 Baths, 2 Car Garage Elevation

Elevation

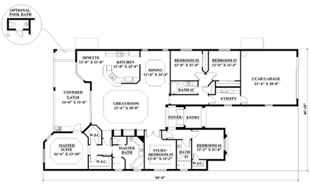
Mediterranean House Plan 60764 with 4 Beds, 3 Baths, 2 Car Garage Level One

Level One

House Plans by this Designer

Plan Number 75609 - 3397 Square Feet
Plan Number 75608 - 3276 Square Feet
Plan Number 75607 - 2897 Square Feet
Plan Number 75606 - 2878 Square Feet
Plan Number 75610 - 3192 Square Feet
Plan Number 75605 - 2511 Square Feet
Plan Number 75604 - 4494 Square Feet
Plan Number 72806 - 3489 Square Feet
Plan Number 60799 - 2878 Square Feet
See More Plans by this Designer