House Plan 61066 - Southern Style with 2610 Sq Ft, 2 Bed, 2 Bath, | COOLhouseplans.com
Call 800-482-0464
Country, Southern House Plan 61066 with 2 Beds, 3 Baths Elevation

Elevation

Photographs may show modified designs.
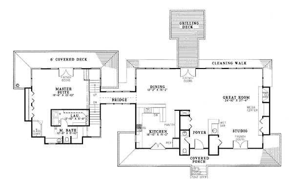
Country, Southern House Plan 61066 with 2 Beds, 3 Baths Level One

Level One

Country, Southern House Plan 61066 with 2 Beds, 3 Baths Level Two

Level Two

Country, Southern House Plan 61066 with 2 Beds, 3 Baths Rear Elevation

Rear Elevation

Photographs may show modified designs. Image quality may be compromised.

House Plans by this Designer

Plan Number 62166 - 2707 Square Feet
Plan Number 62165 - 2593 Square Feet
Plan Number 62164 - 1325 Square Feet
Plan Number 62163 - 1712 Square Feet
Plan Number 62162 - 1008 Square Feet
Plan Number 62161 - 2864 Square Feet
Plan Number 62160 - 2545 Square Feet
Plan Number 62159 - 1519 Square Feet
Plan Number 62158 - 5726 Square Feet
See More Plans by this Designer