House Plan 62134 - Cape Cod Style with 1783 Sq Ft, 3 Bed, 2 Bath, | COOLhouseplans.com
Call 800-482-0464
Cape Cod House Plan 62134 with 3 Beds, 3 Baths, 2 Car Garage Elevation

Elevation

Cape Cod House Plan 62134 with 3 Beds, 3 Baths, 2 Car Garage Level One

Level One

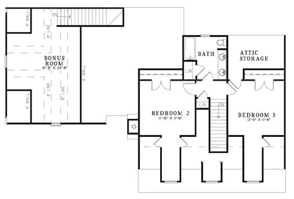
Cape Cod House Plan 62134 with 3 Beds, 3 Baths, 2 Car Garage Level Two

Level Two

House Plans by this Designer

Plan Number 62166 - 2707 Square Feet
Plan Number 62165 - 2593 Square Feet
Plan Number 62164 - 1325 Square Feet
Plan Number 62163 - 1712 Square Feet
Plan Number 62162 - 1008 Square Feet
Plan Number 62161 - 2864 Square Feet
Plan Number 62160 - 2545 Square Feet
Plan Number 62159 - 1519 Square Feet
Plan Number 62158 - 5726 Square Feet
See More Plans by this Designer