House Plan 76703 - Traditional Style with 3506 Sq Ft, 4 Bed, 4 Ba | COOLhouseplans.com
Call 800-482-0464
Craftsman, Traditional House Plan 76703 with 4 Beds, 5 Baths, 3 Car Garage Elevation

Elevation

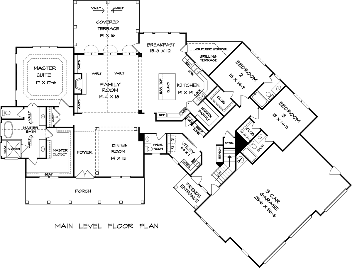
Craftsman, Traditional House Plan 76703 with 4 Beds, 5 Baths, 3 Car Garage Level One

Level One

Craftsman, Traditional House Plan 76703 with 4 Beds, 5 Baths, 3 Car Garage Level Two

Level Two

House Plans by this Designer

Plan Number 60090 - 3740 Square Feet
Plan Number 60088 - 3383 Square Feet
Plan Number 76739 - 1548 Square Feet
Plan Number 58299 - 2971 Square Feet
Plan Number 60077 - 3537 Square Feet
Plan Number 58253 - 3337 Square Feet
Plan Number 76723 - 2808 Square Feet
Plan Number 58288 - 2488 Square Feet
Plan Number 58285 - 3180 Square Feet
See More Plans by this Designer