House Plan 95174 - Colonial Style with 3775 Sq Ft, 3 Bed, 2 Bath, | COOLhouseplans.com
Call 800-482-0464
Colonial House Plan 95174 with 3 Beds, 3 Baths, 2 Car Garage Elevation

Elevation

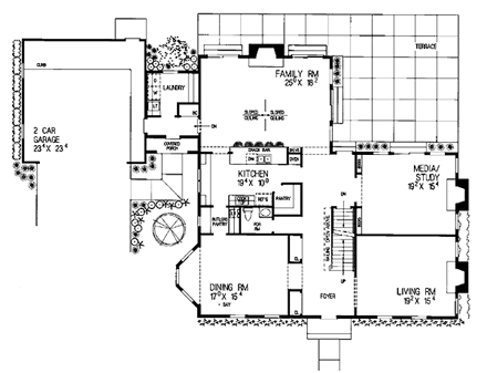
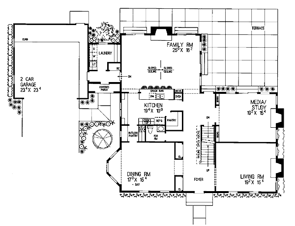
Colonial House Plan 95174 with 3 Beds, 3 Baths, 2 Car Garage Level One

Level One

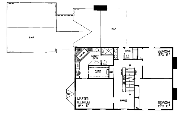
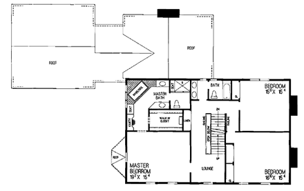
Colonial House Plan 95174 with 3 Beds, 3 Baths, 2 Car Garage Level Two

Level Two

Colonial House Plan 95174 with 3 Beds, 3 Baths, 2 Car Garage Level Three

Level Three

House Plans by this Designer

Plan Number 95275 - 2513 Square Feet
Plan Number 95274 - 2295 Square Feet
Plan Number 95273 - 3459 Square Feet
Plan Number 95272 - 2391 Square Feet
Plan Number 95271 - 3314 Square Feet
Plan Number 95270 - 1831 Square Feet
Plan Number 95269 - 1831 Square Feet
Plan Number 95268 - 6289 Square Feet
Plan Number 95267 - 2034 Square Feet
See More Plans by this Designer