House Plan 97199 - European Style with 3688 Sq Ft, 4 Bed, 2 Bath, | COOLhouseplans.com

15% Off Spring Sale! Use Promo Code SPRING at Checkout!

Call 800-482-0464
Bungalow, European House Plan 97199 with 4 Beds, 5 Baths, 3 Car Garage Elevation

Elevation

Photographs may show modified designs.
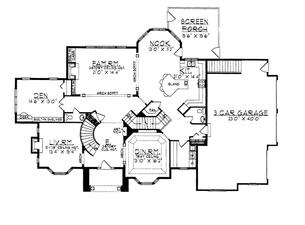
Bungalow, European House Plan 97199 with 4 Beds, 5 Baths, 3 Car Garage Level One

Level One

Bungalow, European House Plan 97199 with 4 Beds, 5 Baths, 3 Car Garage Level Two

Level Two

Bungalow, European House Plan 97199 with 4 Beds, 5 Baths, 3 Car Garage Rear Elevation

Rear Elevation

Photographs may show modified designs. Image quality may be compromised.

House Plans by this Designer

Plan Number 75437 - 2321 Square Feet
Plan Number 75423 - 1477 Square Feet
Plan Number 100912 - 2357 Square Feet
Plan Number 75471 - 3547 Square Feet
Plan Number 75470 - 3583 Square Feet
Plan Number 75473 - 5831 Square Feet
Plan Number 75472 - 3661 Square Feet
Plan Number 75417 - 5014 Square Feet
Plan Number 75416 - 4540 Square Feet
See More Plans by this Designer