House Plan 46303 - Traditional Style with 1358 Sq Ft, 2 Bed, 2 Ba | COOLhouseplans.com
Call 800-482-0464
Traditional House Plan 46303 with 2 Beds, 2.5 Baths, 2 Car Garage Elevation

Elevation

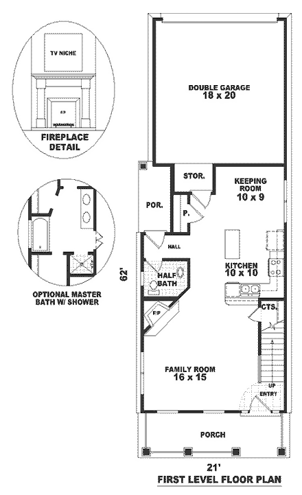
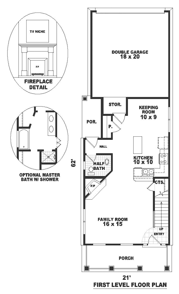
Traditional House Plan 46303 with 2 Beds, 2.5 Baths, 2 Car Garage Level One

Level One

Traditional House Plan 46303 with 2 Beds, 2.5 Baths, 2 Car Garage Level Two

Level Two

House Plans by this Designer

Plan Number 44934 - 1610 Square Feet
Plan Number 47047 - 3546 Square Feet
Plan Number 48761 - 9925 Square Feet
Plan Number 48760 - 5271 Square Feet
Plan Number 48759 - 4877 Square Feet
Plan Number 48758 - 3362 Square Feet
Plan Number 48757 - 3246 Square Feet
Plan Number 48756 - 2840 Square Feet
Plan Number 48755 - 5668 Square Feet
See More Plans by this Designer