Garage-Living Plan 81538 - Contemporary Style with 2027 Sq Ft, 2 | COOLhouseplans.com
Call 800-482-0464
Coastal, Contemporary Garage-Living Plan 81538 with 2 Beds, 2 Baths, 2 Car Garage Elevation

Elevation

Photographs may show modified designs.
Coastal, Contemporary Garage-Living Plan 81538 with 2 Beds, 2 Baths, 2 Car Garage Level One

Level One

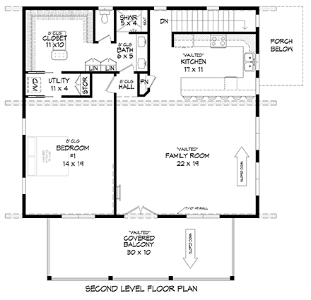
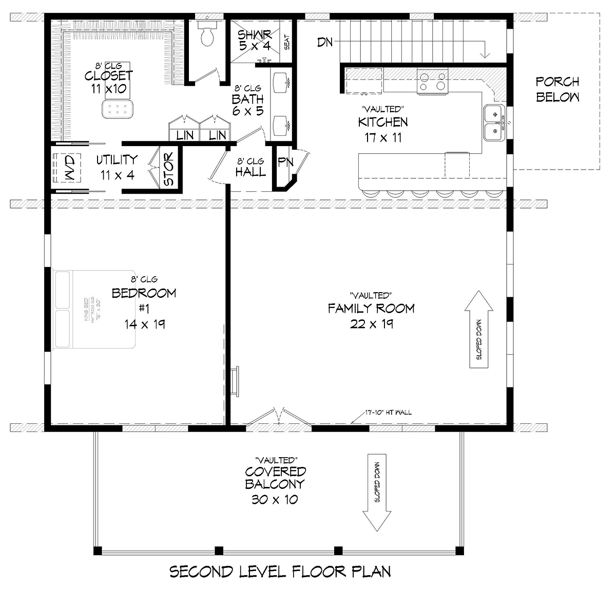
Coastal, Contemporary Garage-Living Plan 81538 with 2 Beds, 2 Baths, 2 Car Garage Level Two

Level Two

Coastal, Contemporary Garage-Living Plan 81538 with 2 Beds, 2 Baths, 2 Car Garage Level Three

Level Three

Coastal, Contemporary Garage-Living Plan 81538 with 2 Beds, 2 Baths, 2 Car Garage Rear Elevation

Rear Elevation

Photographs may show modified designs. Image quality may be compromised.

Garage-Living Plans by this Designer

Plan Number 80929 - 1773 Square Feet
Plan Number 40823 - 650 Square Feet
Plan Number 40897 - 804 Square Feet
Plan Number 40896 - 876 Square Feet
Plan Number 40889 - 1251 Square Feet
Plan Number 51589 - 1190 Square Feet
Plan Number 83414 - 1016 Square Feet
Plan Number 40898 - 2528 Square Feet
Plan Number 83423 - 1984 Square Feet
See More Plans by this Designer