House Plan 95804 - Southwest Style with 1948 Sq Ft, 3 Bed, 2 Bath | COOLhouseplans.com
Call 800-482-0464
Florida, Ranch, Southwest House Plan 95804 with 3 Beds, 3 Baths, 2 Car Garage Elevation

Elevation

Photographs may show modified designs.
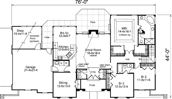
Florida, Ranch, Southwest House Plan 95804 with 3 Beds, 3 Baths, 2 Car Garage Level One

Level One

Florida, Ranch, Southwest House Plan 95804 with 3 Beds, 3 Baths, 2 Car Garage Rear Elevation

Rear Elevation

Photographs may show modified designs. Image quality may be compromised.

House Plans by this Designer

Plan Number 87821 - 1540 Square Feet
Plan Number 87885 - 672 Square Feet
Plan Number 87897 - 1040 Square Feet
Plan Number 87392 - 1161 Square Feet
Plan Number 87391 - 1200 Square Feet
Plan Number 87390 - 1084 Square Feet
Plan Number 87389 - 1452 Square Feet
Plan Number 87388 - 2727 Square Feet
Plan Number 87387 - 4023 Square Feet
See More Plans by this Designer