House Plan 97161 - Victorian Style with 3323 Sq Ft, 4 Bed, 2 Bath | COOLhouseplans.com
Call 800-482-0464
Farmhouse, Victorian House Plan 97161 with 4 Beds, 3 Baths, 2 Car Garage Elevation

Elevation

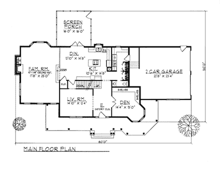
Farmhouse, Victorian House Plan 97161 with 4 Beds, 3 Baths, 2 Car Garage Level One

Level One

Farmhouse, Victorian House Plan 97161 with 4 Beds, 3 Baths, 2 Car Garage Level Two

Level Two

House Plans by this Designer

Plan Number 75437 - 2321 Square Feet
Plan Number 75423 - 1477 Square Feet
Plan Number 100912 - 2357 Square Feet
Plan Number 75471 - 3547 Square Feet
Plan Number 75470 - 3583 Square Feet
Plan Number 75473 - 5831 Square Feet
Plan Number 75472 - 3661 Square Feet
Plan Number 75417 - 5014 Square Feet
Plan Number 75416 - 4540 Square Feet
See More Plans by this Designer